Dúplex Novi Vinodolski, Novi Vinodolski

€ 450.000
5+
173 m²
B
No

Nota

Anuncio actualizado el 20/04/2026
Descripción

This description has been translated automatically and may not be accurate

referencia: 1379

In the very heart of Novi Vinodolski, just 150 meters walking distance from the sea, a property is for sale that combines three functional units – a commercial space, an attic apartment, and a storage area with a studio apartment in the basement. Located in one of the most frequented and sought-after locations in the city, this property represents a rare investment opportunity for a successful business and quality living space in the immediate vicinity of all city amenities.

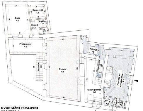
The basement of the building includes two storage rooms with a total area of 30 m² and an additional studio apartment, making the total area of this level 43.45 m². This space offers various uses such as storage, staff accommodation, or conversion according to the future owner's needs.

The two-level commercial space spans the ground floor and the first floor, with a total area of 78.24 m². It is currently operating as a restaurant with a long history of successful business. It consists of a guest serving area, a bar, two restrooms, a kitchen, and a storage room. The space is fully equipped with all necessary appliances and inventory for uninterrupted hospitality operation and is air-conditioned for additional comfort of guests and staff.

In the attic, there is an apartment of 52.02 m², consisting of a hallway, bedroom, bathroom, kitchen, living room, and storage. The apartment is ideal for permanent living, tourist rental, or as additional accommodation for business purposes. There is a possibility of converting the commercial space into residential, which further increases the flexibility and investment potential of the property.

Thanks to its exceptional location – in the city center, close to all key amenities and just a few minutes' walk to the sea – the property has great potential. It is also possible to purchase the commercial space and apartment separately, offering additional flexibility for investors.

This multifunctional property presents an excellent opportunity for those seeking a stable source of income, a prime location, and the possibility of living or expanding a business in one of Croatia’s most popular coastal towns.

ID CODE: 1379

Domagoj Margeta
Vanjski suradnik / Agent s licencom
Mob: +385 99 883 3322
Tel: +385 51 333 888
E-mail: d.margeta@relax-nekretnine.com
www.relax-nekretnine.com
Características
Tipología
Dúplex
Contrato
Venta
Planta
Planta baja
Plantas del edificio
2
Ascensor
No
Superficie
173 m²
Habitaciones
5+
Dormitorios
0
Balcón
No
Terraza
No
Aire acondicionado
Individual, frío/calor
Información del precio
Precio
€ 450.000
Precio del m²
2.601 €/m²
Eficiencia energética
  • Aire acondicionado

    Individual, frío/calor
  • Certificación energética

    Inclasificable
Plano
Descubre otros ángulos del inmueble
+14
Opciones adicionales

Contactar con el anunciante

O