Casa plurifamiliar Malinska, Malinska-Dubašnica, Malinska

€ 495.000
4
100 m²
3
No

Nota

Anuncio actualizado el 06/02/2026
Descripción

This description has been translated automatically and may not be accurate

referencia: 4508

Malinska, for sale, semi-detached house with pool and sea view

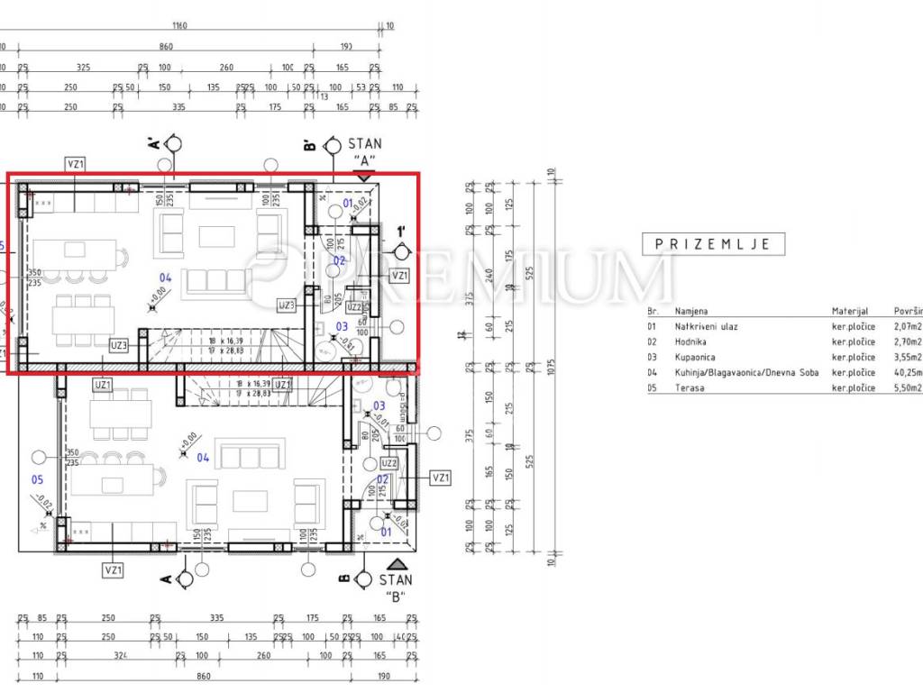
A semi-detached house in Malinska is for sale, with a total living area of 116 m², spread over two levels: ground floor and first floor.
On the ground floor, you will find a hallway, kitchen with dining area, living room, WC, and terrace.
On the first floor, there are 3 bedrooms, each with its own bathroom, and a hallway.
The property has a yard of approximately 180 m², which includes an 18 m² pool with a sunbathing area and two parking spaces.

The house is air-conditioned in all rooms, has underfloor heating, and PVC windows. The completion of construction and move-in is scheduled for December 2025.

Located in a quiet area surrounded by new houses intended for vacation homes.

For more information and to schedule a viewing, contact us!

ID CODE: 4508

Premium nekretnine Malinska
Mob: +385915474709
Tel: +38551858364
E-mail: info@premium-nekretnine.com
Características
Tipología
Casa plurifamiliar
Contrato
Venta
Plantas del edificio
1
Ascensor
No
Superficie
100 m²
Habitaciones
4
Dormitorios
3
Baños
3
Balcón
No
Terraza
No
Garaje, plazas de aparcamiento
2 en aparcamiento/garaje público
Aire acondicionado
Individual, frío/calor
Información del precio
Precio
€ 495.000
Precio del m²
4.950 €/m²
Eficiencia energética
  • Año de construcción

    2025
  • Aire acondicionado

    Individual, frío/calor
  • Certificación energética

    Inclasificable
Descubre otros ángulos del inmueble
+10
Opciones adicionales

Contactar con el anunciante

O