Casa unifamiliar Malinska, Malinska-Dubašnica, Malinska

€ 630.000
5
154 m²
3
No
Terraza

Nota

Anuncio actualizado el 06/02/2026
Descripción

This description has been translated automatically and may not be accurate

referencia: 4097

Malinska, sale of a luxurious detached house with a view of the sea, a swimming pool and a spacious garden area of ​​370 m2!

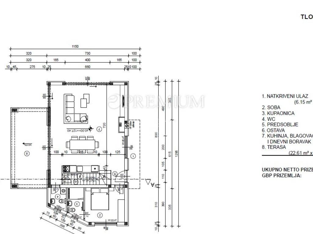
A spacious house, with a net area of ​​154 m2, consists of a ground floor and an upper floor.

On the ground floor there is an entrance area, a guest toilet, a storage room, a bedroom with its own bathroom, an open space - living room, kitchen and dining room.
The living room has access to 2 spacious terraces. Both terraces have a garden dining set and access to the pool and sun deck. Also, one terrace has an outdoor kitchen and a fireplace.

Upstairs there are 3 spacious bedrooms, 2 of which have their own bathroom, and all rooms have access to a common terrace.
The house is decorated with a functional arrangement of rooms, PVC joinery, aluminum burglar-proof doors, electric underfloor heating, high-quality ceramics and sanitary ware...

The house is being sold on a "turnkey" basis.

Quiet location, 1500 m from the sea!

ID CODE: 4097

Premium nekretnine Malinska
Mob: +385915474709
Tel: +38551858364
E-mail: info@premium-nekretnine.com
Características
Tipología
Casa unifamiliar
Contrato
Venta
Plantas del edificio
1
Ascensor
No
Superficie
154 m²
Habitaciones
5
Dormitorios
4
Baños
3
Balcón
No
Terraza
Garaje, plazas de aparcamiento
2 en aparcamiento/garaje público
Calefacción
Individual, por aire
Aire acondicionado
Individual, frío/calor
Otras características
  • Puerta blindada
Información del precio
Precio
€ 630.000
Precio del m²
4.091 €/m²
Eficiencia energética
  • Año de construcción

    2024
  • Calefacción

    Individual, por aire
  • Aire acondicionado

    Individual, frío/calor
  • Certificación energética

    Inclasificable
Descubre otros ángulos del inmueble
+20
Opciones adicionales

Contactar con el anunciante

O