Piso de cuatro habitaciones Rubeši, Kastav, Kastav

€ 550.000
4
185 m²
2
B
No

Nota

Anuncio actualizado el 22/01/2026
Descripción

This description has been translated automatically and may not be accurate

referencia: 23234

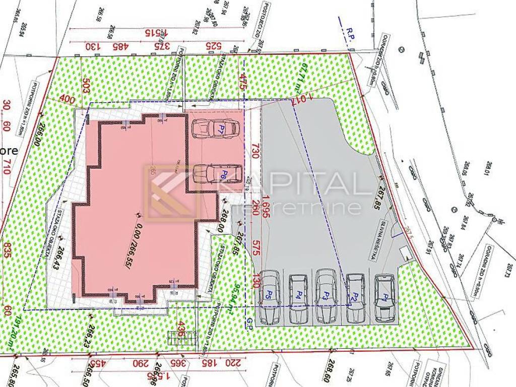
An excellent project in which the ground floor is for sale, a 3-bedroom apartment of 119.28 m2, a terrace of 25 m2, a basement (can be a small apartment or a space for socializing) of 50.28 m2, a garden of 200 m2 and 3 parking spaces. ini 185m2 (calculated in coefficients). It is planned to install diesel heating, air-conditioned rooms, above-average quality external carpentry, min 10 cm stone wool, double-layer glass fence, arrangement of the interior with an agreement with the buyer, etc. Very nice location near all facilities with a view of the sea. An agreement to buy 2 floors instead of the ground floor is possible. The apartments are identical except that there is a covered terrace on the ground floor and 2 covered balconies on the upper floors. New on the market! For all information, call 098/501-044

ID CODE: 23234

Damir Maričević
Suradnik
Mob: 098/501-044
Tel: 051/227-733
www.kapitalnekretnine.hr
Características
Tipología
Piso
Contrato
Venta
Planta
Planta baja
Ascensor
No
Superficie
185 m²
Habitaciones
4
Dormitorios
3
Baños
2
Balcón
No
Terraza
No
Garaje, plazas de aparcamiento
3 en aparcamiento/garaje público
Información del precio
Precio
€ 550.000
Precio del m²
2.973 €/m²
Eficiencia energética
  • Certificación energética

    Inclasificable
Descubre otros ángulos del inmueble
+2
Opciones adicionales

Contactar con el anunciante

O