Casa unifamiliar Malinska, Malinska-Dubašnica, Malinska

€ 910.000
5+
237 m²
3+
No
Terraza

Nota

Anuncio actualizado el 22/01/2026
Descripción

This description has been translated automatically and may not be accurate

referencia: M-470

An impressive modern villa under construction is for sale in the attractive tourist region of the Island of Krk.

The property is positioned in a very quiet location near Malinska, not too far from the sea.

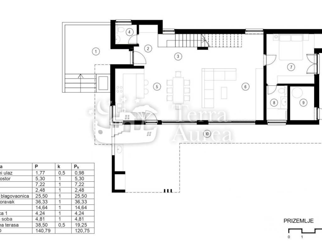
Structurally, this is a detached two-storey house with a spacious garden and swimming pool. The house itself covers a total, usable area of ​​215,19 m2.
The house consists of an entrance hall, hallway, toilet, bathroom, room with access to an uncovered terrace, technical room, kitchen with dining room and spacious living room with access to a covered terrace with an outdoor kitchen and grill area on the ground floor.

On the first floor of the villa there are 3 spacious bedrooms, one of which has its own bathroom and walk-in shower. The possibility of exiting to the outdoor terrace is from all three rooms, while the remaining two rooms share one bathroom.

The described property is also connected to a well-organized garden with an auxiliary building with a total area of ​​22,5 m2.

In the subject property, 15 m2 is reserved for SPA facilities on the ground floor, which include a sauna, jacuzzi and wellness area for relaxation, and the remaining 7,5 m2 is intended for practical storage in the basement of the property.

The remaining part of the completely landscaped garden with an area of ​​approximately 504 m2 is complemented by a large heated pool of 46 m2 with a sunbathing area and a lounge area for relaxation with a fireplace in the middle.

In the courtyard of this house, there is a spacious place for comfortable parking of at least 2 vehicles.

The property is characterized by high-quality construction and top-notch equipment.

The villa will be equipped with quality joinery, floor coverings made of quality ceramics and stone, top-quality sanitary facilities, ceiling air conditioners and underfloor heating with a heat pump.

The environment itself will be beautifully landscaped with Mediterranean plants and green areas.

ID CODE: M-470

Franco Milohnić
Agent s licencom
Mob: +385917543573
Tel: +38551222353
E-mail: franco@terraaurea.hr
www.terraaurea.hr
Características
Tipología
Casa unifamiliar
Contrato
Venta
Ascensor
No
Superficie
237 m²
Habitaciones
5+
Dormitorios
4
Baños
3+
Balcón
No
Terraza
Garaje, plazas de aparcamiento
2 en aparcamiento/garaje público
Calefacción
Individual, por aire
Aire acondicionado
Individual, frío/calor
Otras características
  • Puerta blindada
Información del precio
Precio
€ 910.000
Precio del m²
3.840 €/m²
Eficiencia energética
  • Año de construcción

    2023
  • Calefacción

    Individual, por aire
  • Aire acondicionado

    Individual, frío/calor
  • Certificación energética

    Inclasificable
Descubre otros ángulos del inmueble
+12
Opciones adicionales

Contactar con el anunciante

O