Casa unifamiliar Malinska, Malinska-Dubašnica, Malinska

€ 910.000
5
238 m²
3
No
Balcón

Nota

Anuncio actualizado el 22/01/2026
Descripción

This description has been translated automatically and may not be accurate

referencia: 3-70601

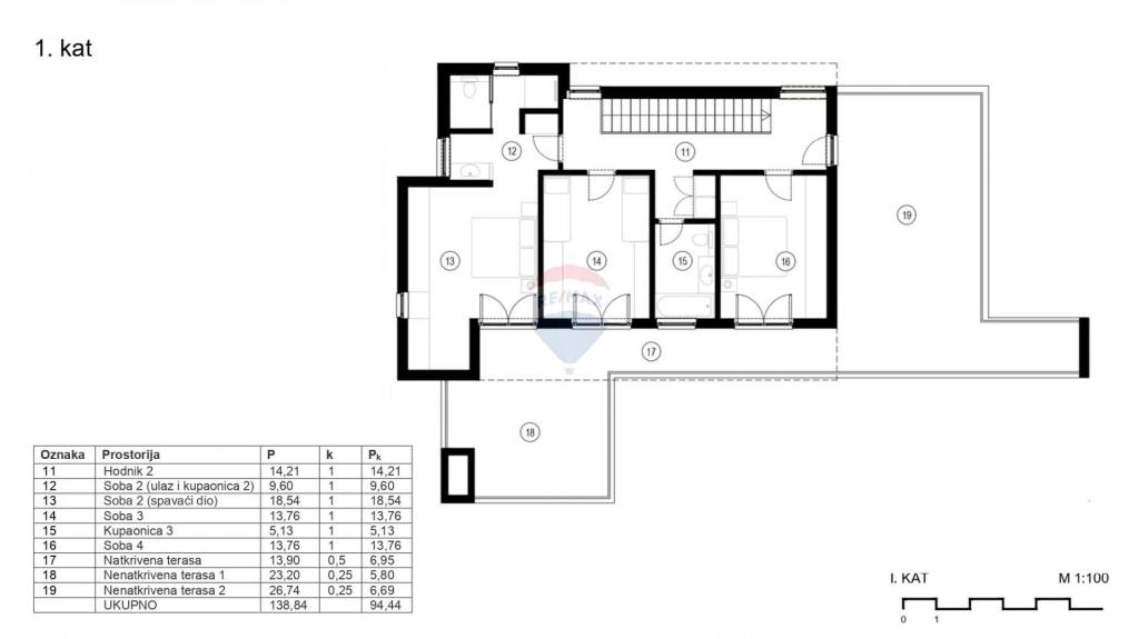
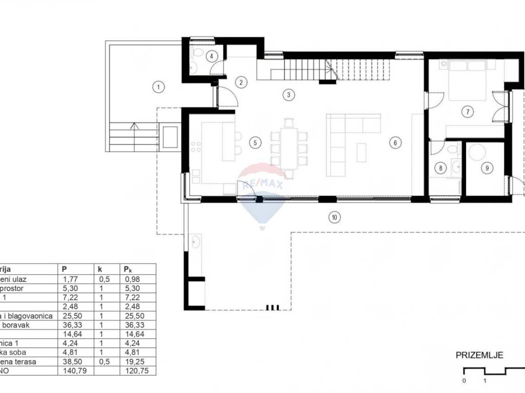
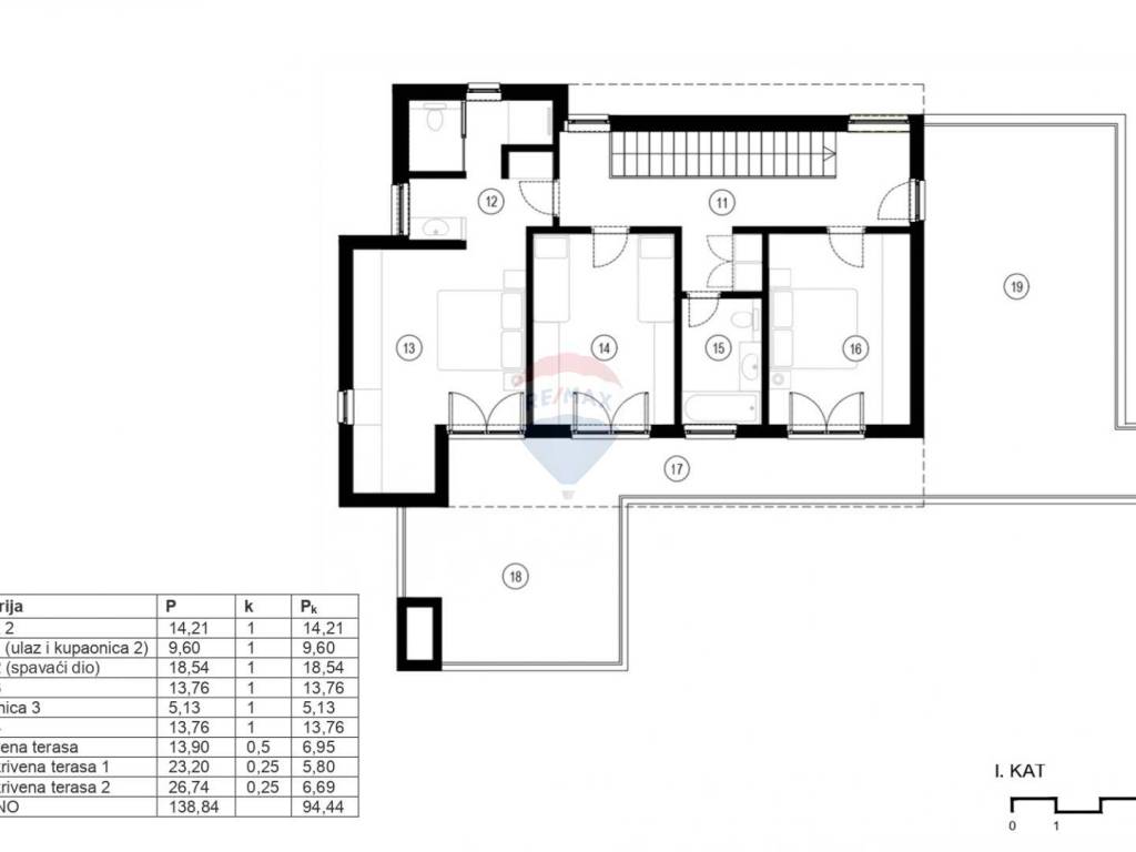
In a quiet location in the vicinity of Malinska, on the island of Krk, there is a modern imposing villa under construction, perfect for those looking for luxury, comfort and privacy. The villa extends to two floors with a total residential area of 215.19 m ² and is surrounded by a landscaped garden of 504 m ² which includes a heated swimming pool with a sunbathing area, lounge area with a fireplace and outdoor kitchen and grill area. On the ground floor there is a spacious living room, kitchen with dining room, technical room, additional bathroom, guest toilet and one room with exit on the terrace. Upstairs are three bedrooms, the main of which has its own bathroom, and all bedrooms have access to a common terrace. An additional facility within the garden is reserved for the SPA zone with sauna, jacuzzi and wellness. The villa will be equipped with top-quality materials – quality joinery, ceramics and stone, modern sanitary facilities, ceiling air conditioning and floor heating on the heat pump. The surroundings will be decorated with Mediterranean plants and stone details, creating an ideal oasis for relaxation.

ID CODE: 3-70601

Mirela Petrović
Prodajni predstavnik
Mob: +385 91 641 3300
Tel: +385 51 309 703
E-mail: m.petrovic@remax-krk.hr
remax-centarnekretnina.com
Características
Tipología
Casa unifamiliar
Contrato
Venta
Plantas del edificio
2
Ascensor
No
Superficie
238 m²
Habitaciones
5
Dormitorios
4
Baños
3
Balcón
Terraza
No
Aire acondicionado
Individual, frío/calor
Información del precio
Precio
€ 910.000
Precio del m²
3.824 €/m²
Eficiencia energética
  • Año de construcción

    2025
  • Aire acondicionado

    Individual, frío/calor
  • Certificación energética

    Inclasificable
Plano
Descubre otros ángulos del inmueble
+12
Opciones adicionales

Contactar con el anunciante

O