1/37


Piso de cuatro habitaciones Novigrad, Novigrad
€ 440.000
Anuncio actualizado el 07/04/2026
Descripción
referencia: 300441010-512
ID CODE: 300441010-512
Cleo Puškarić
Suradnik u procesu obuke
Mob: +385 91 641 2896
Tel: +385 52 670 295
E-mail: c.puskaric@remax-istra.hr
www.remax-centarnekretnina.com
Características
- Tipología
- Dúplex
- Contrato
- Venta
- Plantas del edificio
- 3
- Ascensor
- No
- Superficie
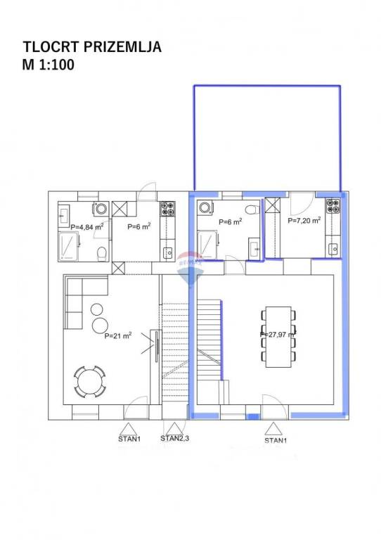
- 135 m²
- Habitaciones
- 4
- Dormitorios
- 3
- Balcón
- No
- Terraza
- No
- Aire acondicionado
- Individual, frío/calor
Información del precio
- Precio
- € 440.000
- Precio del m²
- 3.259 €/m²
Eficiencia energética
Aire acondicionado
Individual, frío/calorCertificación energética
Inclasificable
Visita virtual

Descubre otros ángulos del inmueble
Opciones adicionales