Piso de tres habitaciones Tribunj, Tribunj

€ 339.000
3
111 m²
1
B
No
Terraza

Nota

Anuncio actualizado el 22/01/2026
Descripción

This description has been translated automatically and may not be accurate

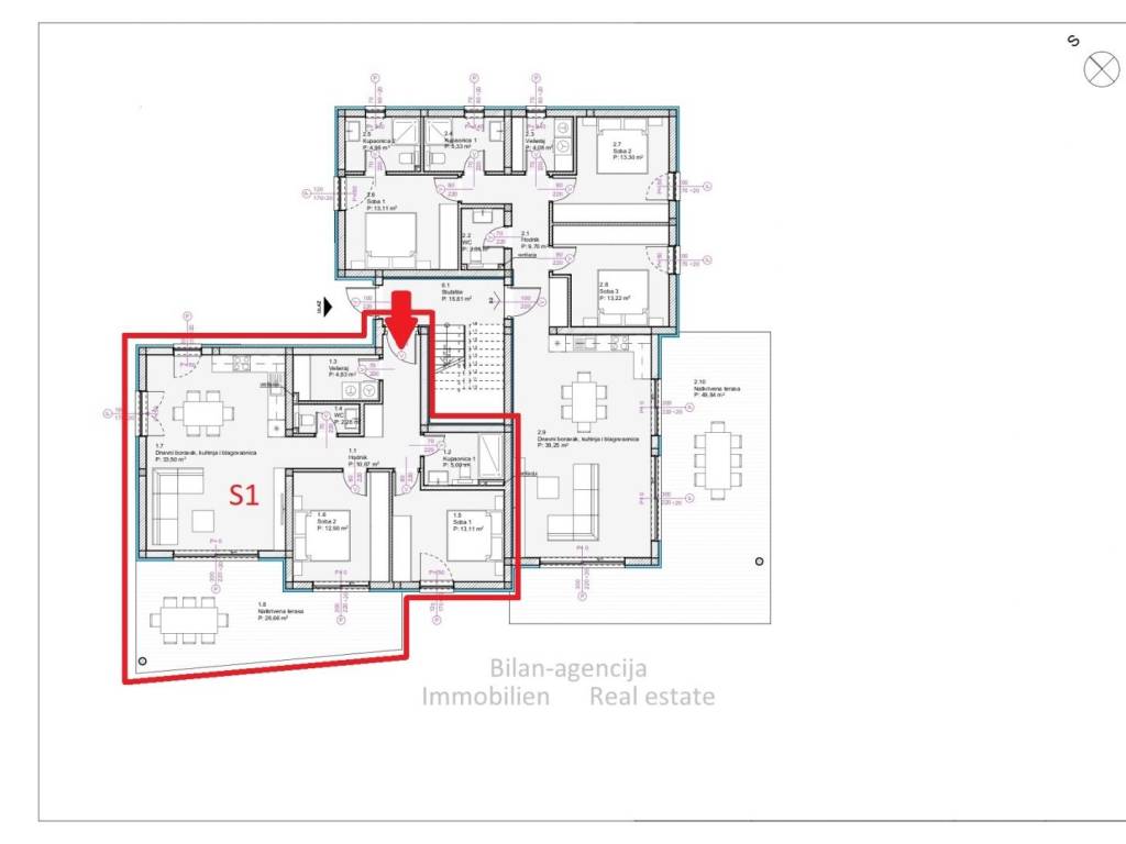
referencia: DUB-S1

In the town of Tribunj, center, 370m from the sea, there is an apartment for sale on the ground floor, with a garden and a yard, total area of ​​244.50 m2.

The apartment is located on the ground floor of a building with a total of 6 apartments. It consists of 2 bedrooms, kitchen-dining room-living room, bathroom, 1 additional toilet, laundry room, hallway, covered terrace.
The apartment has its own garden of 121.55 m2 and one parking space.

The area of ​​all of the above is 244.50 m2.

The location is in the city center tribunj, just a few minutes away from the town of Vodice. There is a large supermarket nearby, and distance to the sea is 370 m.

The apartment will be equipped with air conditioners inverter in all beed and liwing rooms, underfloor heating in all rooms, quality fire and burglary entrance doors, windows with 3 panes and insect protection, electric shutters on the windows and terrace doors. The floors in the bedrooms are covered with quality laminate, other rooms with ceramics.

The seller is subject to VAT. The buyer is not obliged to pay real estate transfer tax, which is payable to the Republic of Croatia.

Very good location and quality construction.

ID CODE: DUB-S1

Bilan nekretnine
Mob: +385 (0)98 266 440
Tel: +385 (0)98 266 440
E-mail: bilan.agencija@gmail.com
www.bilan-agencija.hr
Características
Tipología
Piso
Contrato
Venta
Planta
Planta baja
Ascensor
No
Superficie
111 m²
Habitaciones
3
Dormitorios
2
Baños
1
Balcón
No
Terraza
Garaje, plazas de aparcamiento
1 en aparcamiento/garaje público
Calefacción
Individual, por aire
Aire acondicionado
Individual, frío/calor
Información del precio
Precio
€ 339.000
Precio del m²
3.054 €/m²
Eficiencia energética
  • Año de construcción

    2025
  • Calefacción

    Individual, por aire
  • Aire acondicionado

    Individual, frío/calor
  • Certificación energética

    Inclasificable
Descubre otros ángulos del inmueble
+20
Opciones adicionales

Contactar con el anunciante

O