Casa plurifamiliar Poreč, Luka, Poreč

€ 400.000
3
100 m²
2
No
Terraza

Nota

Anuncio actualizado el 13/03/2026
Descripción

This description has been translated automatically and may not be accurate

referencia: 114-160

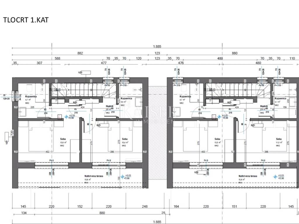
Kaiser immobilien presents a new project of semi-detached houses located in a prime location 7 km from Poreč and the nearest beaches. This modern duplex house project is located in a town with all the necessary amenities such as shops, schools, kindergartens, cafes, restaurants, etc. The total net area of the house is 100 m2. On the ground floor there is an open living room with kitchen and dining area, guest toilet and storage room. There will be access to the terrace and swimming pool from the living room and kitchen. On the first floor there will be two bedrooms, each with its own private bathroom and each with access to a 10 m2 balcony with a sea view. There will be a garden with ornamental plants around the house, and in front of the house there will be a 24 m2 swimming pool with a sunbathing area. Each semi-detached house, meaning each residential unit, will have two parking spaces in its own parking lot in front of the building. The house will be equipped with underfloor heating and air conditioning for heating and cooling. The joinery will be PVC anthracite with triple glazing. Since this is a modern semi-detached house with a swimming pool in the vicinity of Poreč, the house is ideal for vacation, tourism purposes, but also for family life. Distance from the property to the town: Poreč - Pula Airport, 45 km Poreč - Ljubljana, 162 km Poreč - Vienna, 544 km Poreč - Prague, 868 km Poreč - Munich, 565 km If you are looking for this type of house, please contact us with confidence at the phone number 00385 915284449, or at the email address: dean.cvitko@kaiser-immobilien.hr. The agency fee is 3% + VAT, and is charged with the first legal act. The start of construction is scheduled for autumn 2025, and the completion of construction would be at the beginning of 2027.

ID CODE: 114-160

Dean Cvitko
Agent s licencom u posredovanju u prometu nekretnina
Mob: +385915284449, +385995677888
E-mail: dean.cvitko@kaiser-immobilien.hr
www.kaiser-immobilien.hr
Características
Tipología
Casa plurifamiliar
Contrato
Venta
Plantas del edificio
1
Ascensor
No
Superficie
100 m²
Habitaciones
3
Dormitorios
2
Baños
2
Balcón
No
Terraza
Garaje, plazas de aparcamiento
2 en aparcamiento/garaje público
Calefacción
Individual, por aire
Aire acondicionado
Individual, frío/calor
Información del precio
Precio
€ 400.000
Precio del m²
4.000 €/m²
Eficiencia energética
  • Año de construcción

    2025
  • Calefacción

    Individual, por aire
  • Aire acondicionado

    Individual, frío/calor
  • Certificación energética

    Inclasificable
Descubre otros ángulos del inmueble
+9
Opciones adicionales

Contactar con el anunciante

O