Piso de dos habitaciones Brestovice, Kastav, Kastav

€ 202.000
2
55 m²
1
No

Nota

Anuncio actualizado el 23/01/2026
Descripción

This description has been translated automatically and may not be accurate

referencia: 2008-56

Rijeka, Kastav, one-bedroom apartment in a new building

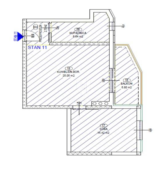
For sale is a spacious two-bedroom apartment located in a building that is currently under construction in beautiful Kastav. This modern designed apartment offers a comfortable and practical space ideal for a comfortable life.

The apartment consists of a spacious living room and a kitchen that will be connected to the rooms, a bathroom and a beautiful loggia. The loggia offers a wonderful view of the surroundings and will be an ideal place to relax outdoors or enjoy your morning coffee.

This modern apartment will have underfloor heating and air conditioning in all rooms, which will ensure comfort throughout the year.

The new building will offer a variety of amenities for tenants, including two parking spaces in front of the building, an 8 m2 storage room, as well as proximity to all essential facilities such as shops, schools and public transport.

The investor offers the option of choosing the final arrangement of the condition, do not miss this opportunity.
The expected date of moving in is the spring of 2025.

ID CODE: 2008-56
Características
Tipología
Piso
Contrato
Venta
Ascensor
No
Superficie
55 m²
Habitaciones
2
Dormitorios
1
Baños
1
Balcón
No
Terraza
No
Garaje, plazas de aparcamiento
1 en garaje privado
Información del precio
Precio
€ 202.000
Precio del m²
3.673 €/m²
Eficiencia energética

Consumo de energia

A+

Descubre otros ángulos del inmueble
+5
Opciones adicionales

Contactar con el anunciante

O