Piso nuevo, planta baja, Vodice

€ 750.000
5
217 m²
3
1
Terraza

Nota

Anuncio actualizado el 28/01/2026
Descripción

This description has been translated automatically and may not be accurate

referencia: 44836

ŠIBENIK, VODICE - DUPLEX with swimming pool, roof terrace and sea view

Residential unit S1 in a luxurious DUPLEX in Vodice for sale.

This property is not intended for buyers looking for a compromise between price and location.
It is intended for those for whom luxury, a view of the sea and quality of construction are a priority.

A modern duplex building is being built on a lofty and elite location in Vodice with two separate residential units, each with a separate entrance, its own pool, garden and roof terrace.
The residential units extend through the ground floor and first floor, and on the roof floor there is a roof terrace designed for a jacuzzi and an area for enjoyment.

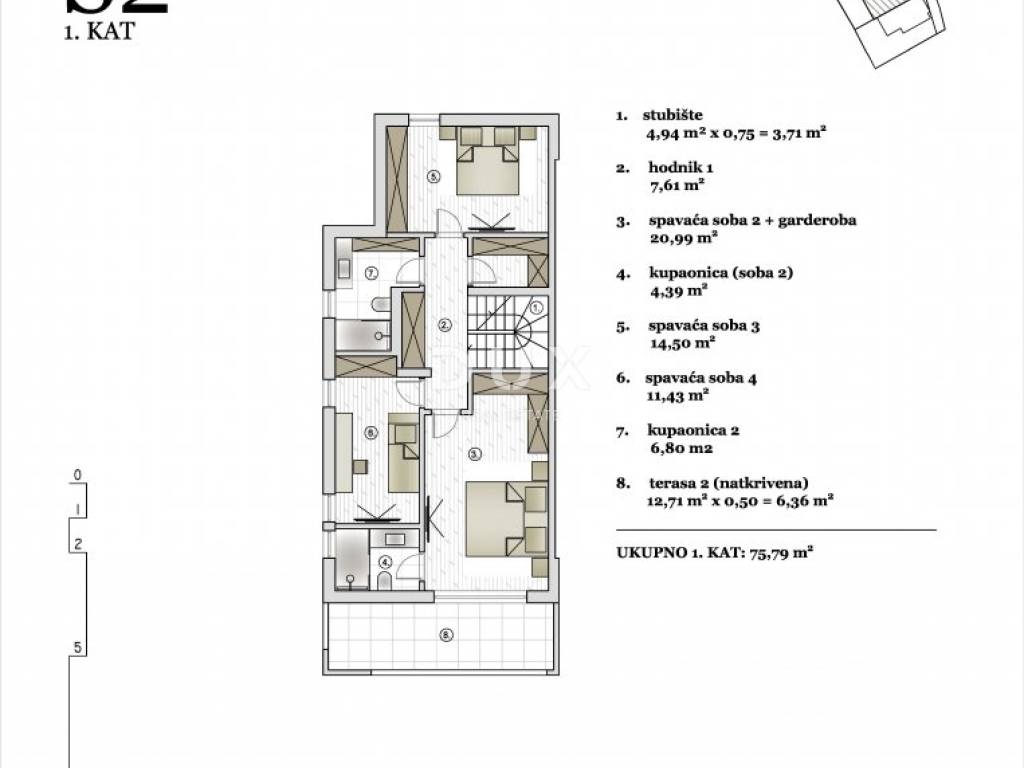
Residential unit S1 comprises the ground floor, first floor and roof floor, and has 2 parking spaces, its own garden and swimming pool, and has a total usable area of 217.90 m2.

On the ground floor there is a bedroom, a bathroom and a spacious living room with an open space concept kitchen and dining room. A large glass wall connects the interior with the terrace, pool and garden, with constant visual contact with the sea.
An internal staircase leads to the 1st floor, where there are three bedrooms, of which the master bedroom has its own bathroom and access to a private terrace, as well as an additional bathroom and another terrace.
In addition to the ground floor and first floor, the apartment also has a roof terrace, designed as a private area for relaxation, sunbathing and evening gatherings with a panoramic view of the sea. A jacuzzi is planned, and part of the terrace is covered.

The apartment will be equipped according to high standards of modern construction, using quality materials and technical solutions aimed at long-term energy efficiency and comfort.
Modern aluminum joinery, underfloor heating via heat pumps, air conditioning in all rooms, a combination of parquet in living areas and ceramic floors in bathrooms and utility areas are planned.
This standard of equipment ensures a high level of living comfort, low maintenance costs and a stable value of the property over time.

If you are looking for a luxury new building in a rare location with a permanent sea view, this property deserves your attention.

VODICE Charming city of nightlife and beaches
Vodice is a tourist destination located 10 kilometers north of Šibenik.
Vodice boasts great hotels, beaches and a rich nightlife offer.
Nearby is the small island of Prvić, the city of Split is 69 km away, Zadar is 59 km away, and the nearest airport is 49 km away.

For additional information or to arrange a viewing, please feel free to contact us.

Dear clients, the agency commission is charged in accordance with the General Terms and Conditions:
www.dux-nekretnine.hr/opci-uvjeti-poslovanja

ID CODE: 44836

Ivan Bego
Agent pripravnik
Mob: +385 91 312 1121
Tel: +385 91 480 8808
E-mail: ivan@dux-dalmacija.com
www.dux-nekretnine.hr
Si deseas más información puedes hablar con Ivan Bego.
Características
Tipología
Piso
Contrato
Venta
Planta
1
Superficie
217 m² | comercial 364 m²
Habitaciones
5
Dormitorios
4
Baños
3
Balcón
No
Terraza
Aire acondicionado
Individual, frío/calor
Detalle superficie

Vivienda

Planta
1
Superficie
217,0 m²
Coeficiente
100%
Tipo de superficie
Principal
Superficie construida
217,0 m²

Terreno

Planta
Planta baja
Superficie
147,0 m²
Coeficiente
100%
Tipo de superficie
Anexos
Superficie construida
147,0 m²
Información del precio
Precio
€ 750.000
Precio del m²
2.060 €/m²
Eficiencia energética
  • Año de construcción

    2026
  • Estado

    Nuevo / En construcción
  • Aire acondicionado

    Individual, frío/calor
  • Certificación energética

    Exento
Descubre otros ángulos del inmueble
+14
Opciones adicionales

Contactar con el anunciante

O