Piso de cuatro habitaciones nuevo, planta baja, Vodice

€ 635.000
4
193 m²
3
1
Terraza

Nota

Anuncio actualizado el 28/01/2026
Descripción

This description has been translated automatically and may not be accurate

referencia: 44829

ŠIBENIK, VODICE Triplex with roof terrace, swimming pool and top view

Residential unit S2 in a luxury triplex in Vodice for sale.

This property is not intended for buyers looking for a compromise between price and location.
It is intended for those for whom luxury, sea view, privacy and quality of construction are a priority.

A modern triplex building with three separate residential units, each with a separate entrance, its own pool and garden, is being built on a lofty and elite location in Vodice.
The residential units extend through the ground floor and first floor, and S2 and S3 additionally have a roof terrace designed for a jacuzzi and a place to relax with a view of the sea.

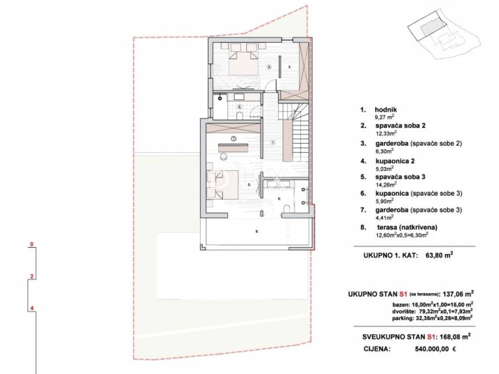
Residential unit S2 covers the ground floor, first floor and roof level, and has a total usable area of 193.67 m2.

The ground floor includes a bedroom, a bathroom and a spacious living room with an open space concept kitchen and dining room. A large glass wall connects the interior with the terrace, pool and garden, with constant visual contact with the sea.
Upstairs there are two bedrooms, of which the master bedroom has its own bathroom and access to a private terrace, and an additional bathroom.
In addition to the ground floor and first floor, S2 also has a roof terrace, designed as a private area for relaxation, sunbathing and evening gatherings with a panoramic view of the sea. A jacuzzi is planned, and part of the terrace is covered.

The apartment will be equipped according to high standards of modern construction, using quality materials and technical solutions aimed at long-term energy efficiency and comfort.
Modern aluminum joinery, underfloor heating via heat pumps, air conditioning in all rooms, a combination of parquet in living areas and ceramic floors in bathrooms and utility areas are planned.
This standard of equipment ensures a high level of living comfort, low maintenance costs and a stable value of the property over time.

S2 is an ideal choice for buyers who want the experience of a luxury villa, but in the format of a modern and rationally designed new building.

VODICE Charming city of nightlife and beaches
Vodice is a tourist destination located 10 kilometers north of Šibenik.
Vodice boasts great hotels, beaches and a rich nightlife offer.
Nearby is the small island of Prvić, the city of Split is 69 km away, Zadar is 59 km away, and the nearest airport is 49 km away.

For additional information or to arrange a viewing, please feel free to contact us.

Dear clients, the agency commission is charged in accordance with the General Terms and Conditions:
www.dux-nekretnine.hr/opci-uvjeti-poslovanja

ID CODE: 44829

Ivan Bego
Agent pripravnik
Mob: +385 91 312 1121
Tel: +385 91 480 8808
E-mail: ivan@dux-dalmacija.com
www.dux-nekretnine.hr
Si deseas más información puedes hablar con Ivan Bego.
Características
Tipología
Piso
Contrato
Venta
Planta
1
Superficie
193 m² | comercial 292 m²
Habitaciones
4
Dormitorios
3
Baños
3
Balcón
No
Terraza
Aire acondicionado
Individual, frío/calor
Detalle superficie

Vivienda

Planta
1
Superficie
193,0 m²
Coeficiente
100%
Tipo de superficie
Principal
Superficie construida
193,0 m²

Terreno

Planta
Planta baja
Superficie
99,0 m²
Coeficiente
100%
Tipo de superficie
Anexos
Superficie construida
99,0 m²
Información del precio
Precio
€ 635.000
Precio del m²
2.175 €/m²
Eficiencia energética
  • Año de construcción

    2026
  • Estado

    Nuevo / En construcción
  • Aire acondicionado

    Individual, frío/calor
  • Certificación energética

    Exento
Descubre otros ángulos del inmueble
+17
Opciones adicionales

Contactar con el anunciante

O