Casa unifamiliar Malinska, Malinska-Dubašnica, Malinska

€ 890.000
5
199 m²
3
No
Terraza

Nota

Anuncio actualizado el 28/01/2026
Descripción

This description has been translated automatically and may not be accurate

referencia: 471

Malinska, surroundings, modern imposing villa under construction located in a quiet location of a small island town! This modern luxury villa with a heated swimming pool extends over two spacious floors with a total living area of ​​177.12 m2, and the peace and privacy is additionally decorated by a landscaped garden of 658 m2. On the first floor of the villa there are three airy bedrooms, one of which has its own bathroom with a walk-in shower. The other two bedrooms share one bathroom and an outdoor, uncovered terrace. The spacious ground floor will have an abundance of natural light, while it will consist of an entrance hall, a guest toilet, a bathroom, a room with access to an outdoor uncovered terrace, technical rooms, a kitchen, a dining room and a spacious living room with access to an outdoor covered terrace with an outdoor kitchen. , a grill area, a heated swimming pool with a sunbathing area and a lounge area with a fireplace in the middle. The external auxiliary facility will be reserved for the SPA facilities on the ground floor, which include a sauna, a jacuzzi and a wellness area for relaxation. The modern stone villa will be equipped with high-quality carpentry, floor coverings made of high-quality ceramics and stone, high-quality sanitary facilities, ceiling air conditioners and underfloor heating with a heat pump. The environment itself will be beautifully decorated with Mediterranean plants, green areas with lots of stone details. Documentation in order!!

ID CODE: 471

Jelena Andrić
Mob: +385 99 3993 088
Tel: +385 51 678 696
E-mail: info@alfaelmas.com
www.alfaelmas.com
Características
Tipología
Casa unifamiliar
Contrato
Venta
Plantas del edificio
1
Ascensor
No
Superficie
199 m²
Habitaciones
5
Dormitorios
4
Baños
3
Balcón
No
Terraza
Garaje, plazas de aparcamiento
2 en aparcamiento/garaje público
Calefacción
Individual, por aire
Aire acondicionado
Individual, frío/calor
Información del precio
Precio
€ 890.000
Precio del m²
4.472 €/m²
Eficiencia energética
  • Año de construcción

    2023
  • Calefacción

    Individual, por aire
  • Aire acondicionado

    Individual, frío/calor
  • Certificación energética

    Inclasificable
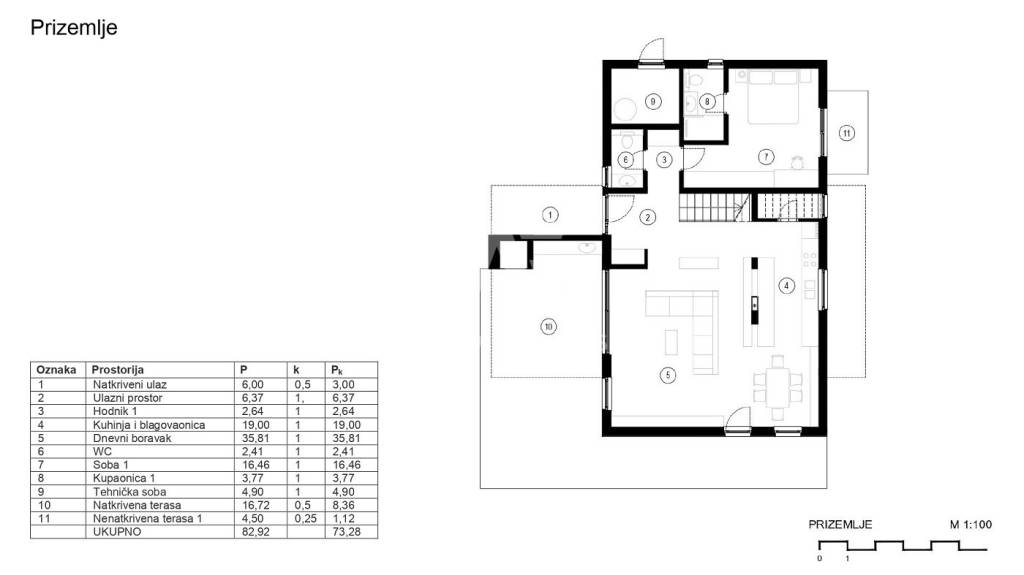
Plano
Descubre otros ángulos del inmueble
+3
Opciones adicionales

Contactar con el anunciante

O