Terreno urbanizable en Venta

€ 90.000
490 m²

Nota

Anuncio actualizado el 28/04/2026
Descripción

referencia: 9997

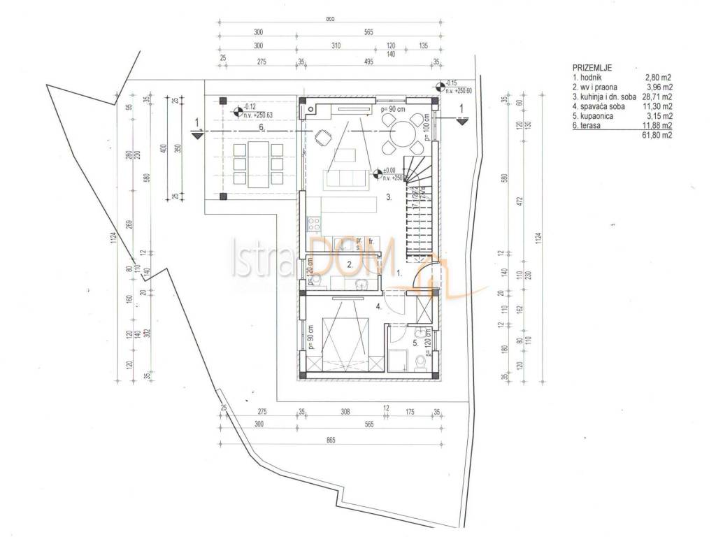
Građevinsko zemljište 490m2 s projektom za vilu s bazenom u Butkovićima, Svetvinčenat. Zemljište je duguljasto i proteže se uz cestu. Nalazi se unutar mjesta, kraj asfaltirane prometnice.
Dobivene su sve suglasnosti za gradnju vile s bazenom. Zahtjev za građevinsku dozvolu je predan. Također su riješeni geodetski elaborati.
Na terenu je napravljena velika septička jama, te ogradni zidovi oko parcele.
Vila će imati prizemlje i prvi kat te sunčalište i bazen od 4 x 7 m2. Kraj bazena terasa i kućica s kaminom za vanjski boravak.
Sastoji se od tri spavaće sobe, dvije kupaone, veliki boravak s kuhinjom i blagovaonom. Stepenice će biti unutar kuće.

Saša Nanovski
Licencirani agent
Kontakt: +385/99-444-5435
email: istradom.sasan@gmail.com

ID CODE: 9997

Saša Nanovski
Agent s licencom
Mob: 099 444 5435
Tel: 0994445435
E-mail: istradom.sasan@gmail.com
www.istra-dom.com
Características
Contrato
Venta
Tipología
Terreno urbanizable
Superficie
490 m²
Información del precio
Precio
€ 90.000
Precio del m²
184 €/m²
Descubre otros ángulos del inmueble
+18
Opciones adicionales

Contactar con el anunciante

O