Terreno urbanizable en Venta

€ 160.000
1.150 m²

Nota

Anuncio actualizado el 17/03/2026
Descripción

This description has been translated automatically and may not be accurate

referencia: 608

Terreno con licencia de construcción en Tinjanu

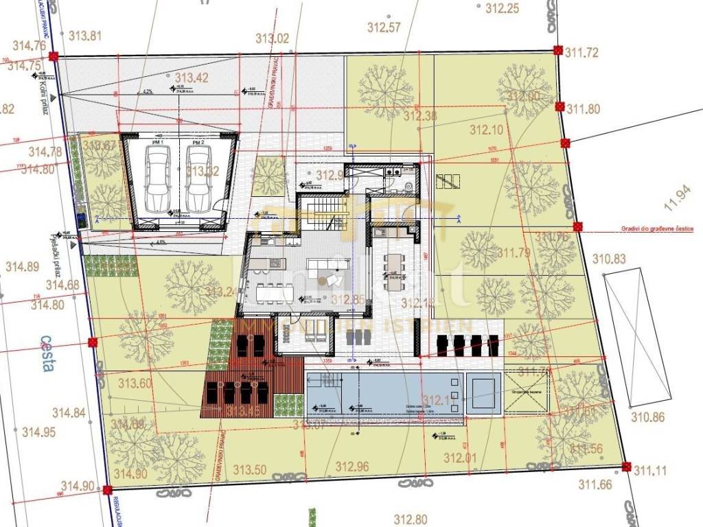
Ubicación del terreno:
Esta parcela edificable se encuentra en Tinjan, a 21 km del mar y de Poreč. La parcela es limpia y de forma rectangular agradable. El vecindario es ordenado y consiste principalmente en casas familiares.

Proyecto de la casa:
En el proyecto de construcción está prevista una casa familiar con garaje y piscina.
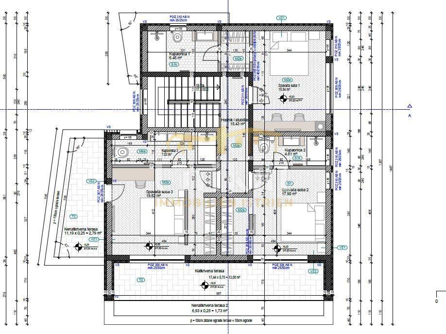
La casa tendría sótano, planta baja y primer piso con una superficie habitable total de 254 m2.
En el sótano están previstas una sala de bienestar, un trastero y un aseo.
En la planta baja habrá una amplia sala de estar con cocina y comedor, una sala de fitness, un aseo para invitados con lavandería y una sala técnica. Desde la sala de estar se prevé acceso directo a una terraza cubierta con cocina de verano, y a continuación hacia la piscina con solárium.
En el primer piso habría tres dormitorios, cada uno con su propio baño privado y vestidor. Dos habitaciones tendrán salida a un balcón cubierto.

Jardín y parcela:
Delante de la casa está planificado un garaje para dos vehículos, y en el otro lado de la casa habría una piscina con solárium. El resto del terreno estará ajardinado.

Otros:
Se vende el terreno con proyecto listo para construcción y permiso de obra para el proyecto. Las conexiones de agua y electricidad están pagadas.
Las imágenes mostradas son solo un ejemplo.
Características
Contrato
Venta
Tipología
Terreno urbanizable
Superficie
1.150 m²
Información del precio
Precio
€ 160.000
Precio del m²
139 €/m²
Descubre otros ángulos del inmueble
+20
Opciones adicionales

Contactar con el anunciante

O