Piso de tres habitaciones Poreč, Luka, Poreč

€ 500.000
3
107 m²
1
1
No
Terraza

Nota

Anuncio actualizado el 30/03/2026
Descripción

This description has been translated automatically and may not be accurate

referencia: S3087

Luxury Apartment with Roof Terrace and Private Jacuzzi – The Perfect Combination of Comfort and Style

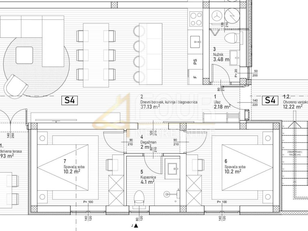
For sale is an impressive new apartment, spread over 107.97m2. This luxury apartment with sea views is an ideal place to live and relax, perfect for those looking for privacy, comfort and a high standard.

The apartment consists of two bedrooms, a spacious living room, a kitchen with a dining area, two bathrooms, a dressing room and a covered terrace, which is the perfect place to enjoy the outdoors. In addition, the apartment offers an impressive roof terrace of 69.34m2 that offers incredible views of the sea and the surrounding nature – ideal for relaxation and entertainment.

The orientation of the apartment to the south and west allows for plenty of sunlight throughout the day, and modern heating and cooling systems, including underfloor heating, air conditioning and a heat pump, ensure a high energy standard and a comfortable stay in any season. Aluminum joinery, security doors, electric shutters and a boiler room are just some of the luxurious details that further enhance the quality of life.
For complete luxury, the apartment is equipped with a jacuzzi, ideal for relaxing after a busy day. Privacy is guaranteed thanks to a separate entrance to the building, while two outdoor parking spaces are provided for the owners.

This property is located only 800 meters from the sea, which allows quick access to the coast and all the beauty it offers. Do not miss the opportunity to become the owner of this exclusive apartment!

Dear clients, the agency commission is charged in accordance with the General Terms and Conditions.

ID CODE: S3087

Ured Istra
Mob: +385994441443
E-mail: info@four-nekretnine.hr
www.four-nekretnine.hr
Características
Tipología
Piso
Contrato
Venta
Planta
1 planta
Ascensor
No
Superficie
107 m²
Habitaciones
3
Dormitorios
2
Baños
1
Balcón
No
Terraza
Garaje, plazas de aparcamiento
2 en aparcamiento/garaje público
Aire acondicionado
Individual, frío/calor
Información del precio
Precio
€ 500.000
Precio del m²
4.673 €/m²
Eficiencia energética
  • Aire acondicionado

    Individual, frío/calor
  • Certificación energética

    Inclasificable
Descubre otros ángulos del inmueble
+6
Opciones adicionales

Contactar con el anunciante

O