Terreno urbanizable en Venta

€ 340.000
649 m²

Nota

Anuncio actualizado el 30/01/2026
Descripción

referencia: 1783

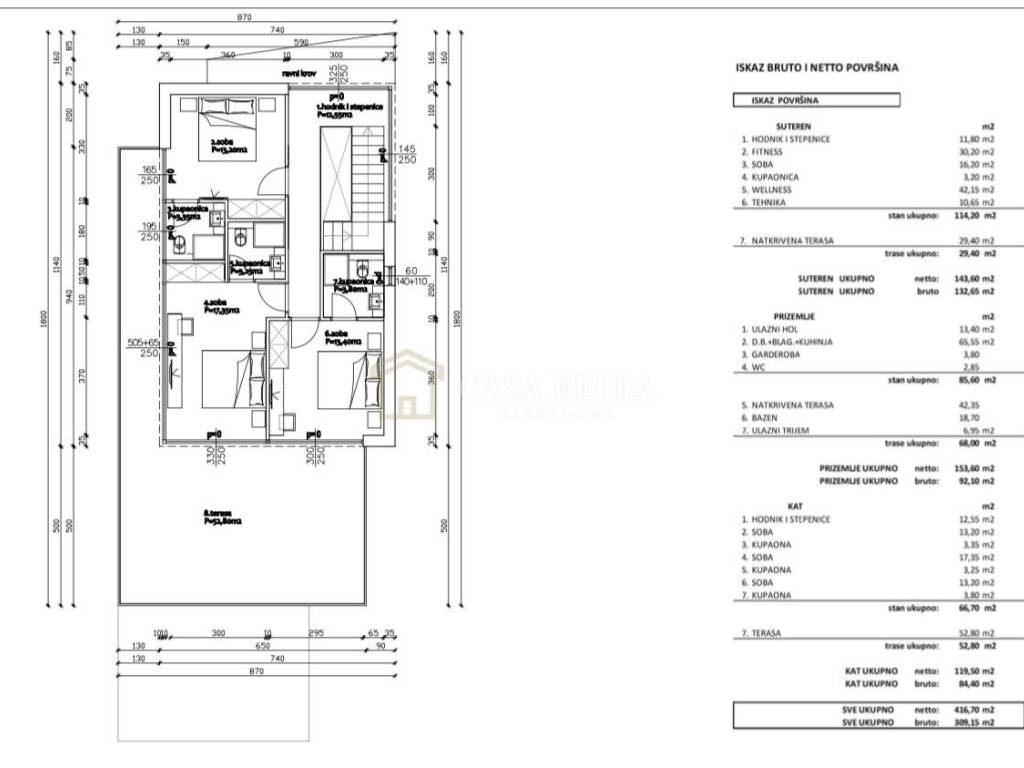
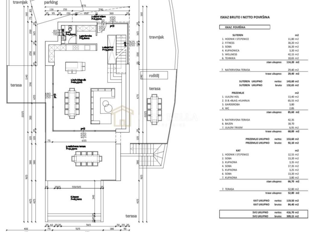
CASA BELLA iz ponude izdvaja građevinsko zemljište u Ičićima, 900m zračne linije od mora, sa građevinskom dozvolom i gotovim projektom za modernu kuću. Teren ima ishodovane dozvole, kao i plaćene komunalije struje i vode, prilazni put, te se s gradnjom može započeti odmah. Prema projektu, kuća ima 416,70m2, te se sastoji od suterena, prizemlja i prvog kata.
Sa zemljišta se pruža predivan otvoreni i nesmetani pogled na more i Kvarner, koji ostaje jer nema mogućnosti gradnje oko projekta.

ID CODE: 1783

Dorian Vicić, mag.oec
Direktor
Mob: +385 98 537 913
E-mail: dvicic@casabellanekretnine.hr
www.casabellanekretnine.hr

Marin Marković
Direktor
Mob: +385 91 614 5103
E-mail: mmarkovic@casabellanekretnine.hr
www.casabellanekretnine.hr
Características
Contrato
Venta
Tipología
Terreno urbanizable
Superficie
649 m²
Información del precio
Precio
€ 340.000
Precio del m²
524 €/m²
Descubre otros ángulos del inmueble
+5
Opciones adicionales

Contactar con el anunciante

O