Piso de tres habitaciones Opatija - Centar, Opatija, Centar, Opatija

€ 624.000
3
95 m²
2
2
Balcón

Nota

Anuncio actualizado el 05/02/2026
Descripción

This description has been translated automatically and may not be accurate

referencia: 2871


For sale: a luxury 2 bedroom apartment in a new building with a swimming pool, elevator and underground garage in the heart of Opatija, located in an ideal location with a view of the sea.

The apartment consists of a hallway, toilet, living room with kitchen and dining room, two bedrooms and two bathrooms, balcony, and one outdoor parking space and one in the underground garage.

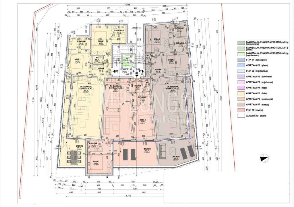
APARTMENT P6
• 2 bedrooms, 2 bathrooms, 1 toilet
• total area of ​​the apartment with accessories: 122.49 m2
• net area of ​​the apartment with accessories: 95.96 m2
• interior area of ​​the apartment: 74.96 m2
• balcony: 21.60 m2
• 1 garage parking space PM 10: 13.25 m2
• 1 outdoor parking space VPM 23: 11 m2
• storage room BIC 2: 1.68 m2

EQUIPMENT

• Heating system and preparation of hot water through heat pumps
• Superior aluminum carpentry
• Electrically operated aluminum blinds
• Superior sanitary facilities

• Anti-theft entrance door

• Elevator

• Shared pool

Opatija, the pearl of the Adriatic, is one of the most sought-after and desirable places for living and vacationing in Croatia. Its irresistible combination of natural beauty, rich history and architecture, and modern facilities make it a truly extraordinary and enchanting destination.



25% VAT is included in the price, the buyer is exempt from real estate sales tax. In the case of a purchase from a company registered in Croatia, a VAT refund is possible after the sale.

An excellent property worthy of attention.

For more information and viewing, contact the agent.

ID CODE: 2871

Filip Popović
Suradnik u procesu obuke
Mob: +385 91 9722 244
Tel: +385 51 858 544
E-mail: filip.popovic@mololongorealestate.com
www.mololongorealestate.com
Características
Tipología
Piso
Contrato
Venta
Planta
2 planta
Plantas del edificio
3
Ascensor
Superficie
95 m²
Habitaciones
3
Dormitorios
2
Baños
2
Balcón
Terraza
No
Garaje, plazas de aparcamiento
1 en garaje privado, 2 en aparcamiento/garaje público
Información del precio
Precio
€ 624.000
Precio del m²
6.568 €/m²
Eficiencia energética
  • Certificación energética

    Inclasificable
Plano
Descubre otros ángulos del inmueble
+8
Opciones adicionales

Contactar con el anunciante

O