map icon

Piso nuevo, planta baja, Vodice

Vodice
€ 235.000
5
71 m²
1
B

Nota

Anuncio actualizado el 02/02/2026
Descripción

referencia: 1167-1

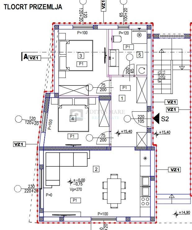
Na prodaju je moderan stan u prizemlju stambene zgrade s ukupno četiri stambene jedinice, smješten na izuzetnoj i mirnoj lokaciji u Vodicama.
Stan ima neto površinu od 70,88 m, a sastoji se od:
-ulaznog prostora (hodnika),
-prostranog dnevnog boravka s kuhinjom i blagovaonicom te izlazom u vrt,
-dvije spavaće sobe,
-kupaonice.
Posebna prednost ove nekretnine je vlastiti vrt površine 80 m, idealan za obiteljska druženja, opuštanje ili uređenje prema vlastitim željama. Stanu pripada i parkirno mjesto.
Lokacija
Nekretnina se nalazi na iznimno atraktivnoj lokaciji:
-škola, vrtić i svi potrebni sadržaji u neposrednoj blizini
-centar Vodica udaljen cca 600 m
-plaža udaljena cca 1.000 m

O Vodicama
Vodice su jedno od najpoželjnijih turističkih i životnih odredišta na Jadranu, poznate po uređenim plažama, bogatoj gastronomskoj ponudi, šetnicama uz more te izvrsnoj infrastrukturi. Grad nudi savršen spoj ugodnog obiteljskog života i turističke atraktivnosti, što ovu nekretninu čini izvrsnom prilikom kako za stanovanje, tako i za investiciju.
Dodatna ponuda:

U istoj zgradi još su dostupni stanovi S3 i S4, smješteni na prvom katu objekta.
Za više informacija, tlocrt, cijene i dostupnost, slobodno nas kontaktirajte.
Interni Id agencije 1167

Ana Ivanda
Agent s licencom
+385 99 33 84 900
info@am-realestate.hr
Jelena Đukić
Agent s licencom
+385 98 983 2830
info@am-realestate.hr
Si deseas más información puedes hablar con Ana Ivanda.
Características
Tipología
Piso
Contrato
Venta
Planta
Planta baja
Superficie
71 m²
Habitaciones
5
Dormitorios
2
Baños
1
Información del precio
Precio
€ 235.000
Precio del m²
3.310 €/m²
Eficiencia energética
  • Año de construcción

    2026
  • Estado

    Nuevo / En construcción
  • Certificación energética

    Inclasificable
Descubre otros ángulos del inmueble
+9
Opciones adicionales

Contactar con el anunciante

O