Piso de tres habitaciones nuevo, primera planta, Velika Gorica

€ 186.180
3
62 m²
1
1

Nota

Anuncio actualizado el 04/03/2026
Descripción

referencia: I34445

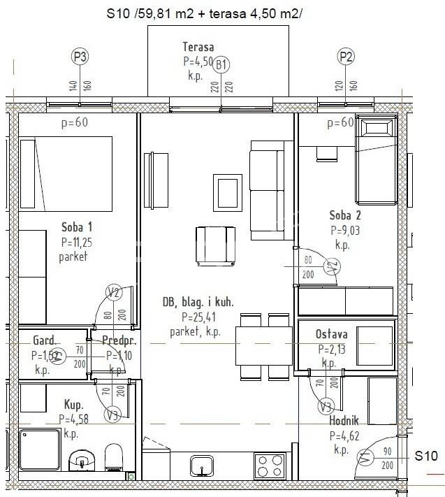
PRODAJA STANA, NOVOGRADNJA, VELIKA GORICA, GRADIĆI, 59,81m2 + 4,5m2 terasa.
Odlična novogradnja u zgradi sa liftom na mirnoj lokaciji na 5 minuta od centra Velike Gorice.
Vrhunski materijali i oprema, prva klasa parketa i keramike, dizalica topline sa podnim grijanjem, lift, parking u garaži.
U neposrednoj blizini nalazi se osnovna škola, vrtić, Konzum, banka, crkva, kao i željeznička stanica koja omogućava dobru povezanost sa Zagrebom i okolnim mjestima.
Obavezna kupnja vanjskog parkirnog mjesta (7.000) ili garažnog parkirnog mjesta (15.000)
Očekivani rok useljenja kraj 2027.g.
Kupac ne plaća porez na promet nekretninama.
Características
Tipología
Piso
Contrato
Venta
Planta
1 planta
Ascensor
Superficie
62 m²
Habitaciones
3
Dormitorios
2
Baños
1
Amueblado
No
Garaje, plazas de aparcamiento
1 en aparcamiento/garaje público
Calefacción
Individual, alimentación eléctrica
Aire acondicionado
Frío/calor
Información del precio
Precio
€ 186.180
Precio del m²
3.003 €/m²
Eficiencia energética
  • Año de construcción

    2026
  • Estado

    Nuevo / En construcción
  • Calefacción

    Individual, alimentación eléctrica
  • Aire acondicionado

    Frío/calor
Descubre otros ángulos del inmueble
+7
Opciones adicionales

Contactar con el anunciante

O