Piso de dos habitaciones nuevo, primera planta, Centar, Luka, Finida, Umag

€ 207.000
2
55 m²
1
1
Balcón
Trastero

Nota

Anuncio actualizado el 14/03/2026
Descripción

This description has been translated automatically and may not be accurate

referencia: 733

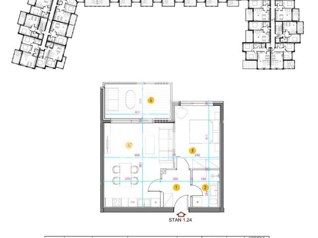
Apartment with covered parking space in a quality new building in Umag

Apartment for sale with covered parking space in a quality new building in Umag. The net usable area of the apartment is 54.66 m2. It consists of a living room and kitchen, bedroom, bathroom and loggia. It has a storage room of 3.08 m2 and a covered parking space

The residential building is entirely designed from reinforced concrete monolithic construction, interfloor panels. The partition walls inside the apartments are made of double-thick plasterboard linings with additional thermal and sound insulation. The facade lining is in the ETICS system with 10 cm thick thermal insulation. The external facade openings are closed with high-quality multi-chamber PVC anthracite joinery of the latest generation. The bedrooms have electric roller shutters. All apartments are equipped with high-quality multisplit heating and cooling systems whose operating characteristics ensure maximum comfort and economy.

Each apartment is equipped with its own water and electricity meter. Sanitary water is prepared using a low-consumption electric boiler. All apartments have telephone, antenna, TV and internet connections, and each apartment has an intercom installation with a video intercom. The bedrooms and living room have parquet floors, while the hallways and lobbies have tiles.

www.leones-realestate.hr
Características
Tipología
Piso
Contrato
Venta
Planta
1 planta
Plantas del edificio
3
Ascensor
Superficie
55 m²
Habitaciones
2
Dormitorios
1
Baños
1
Amueblado
No
Balcón
Garaje, plazas de aparcamiento
1 en aparcamiento/garaje público
Calefacción
Individual, alimentación eléctrica
Aire acondicionado
Frío/calor
Otras características
  • Puerta blindada
Información del precio
Precio
€ 207.000
Precio del m²
3.764 €/m²
Eficiencia energética

Consumo de energia

A

Descubre otros ángulos del inmueble
+9
Opciones adicionales

Contactar con el anunciante

O