Casa unifamiliar 291 m², nueva, Luka, Poreč

Precio a consultar
5+
291 m²
3+
Balcón

Nota

Anuncio actualizado el 09/02/2026
Descripción

This description has been translated automatically and may not be accurate

referencia: 2403

Impressive modern villa with for sale a sea view near Poreč

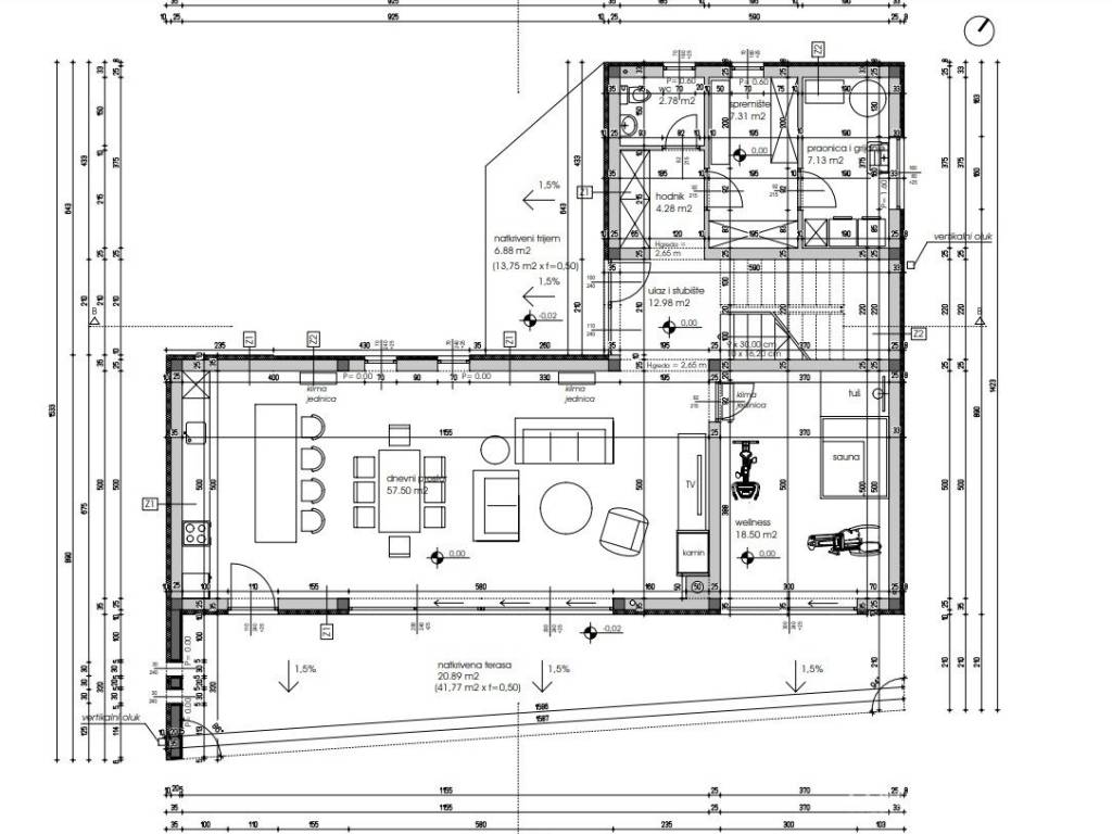
An impressive modern villa for sale with a pool and a sea view near of Poreč. The villa is located in a tourist town not far from Poreč and has all amenities. The net usable area of the villa is 291 m2, while the land area is 676 m2. It extends over three floors. The ground floor of the villa consists of a large open space where there is a living room with a fireplace, a dining room and a kitchen. Also on the ground floor there is a toilet, a laundry room, a study and a wellness area with a sauna. The living room has direct access to a large covered terrace, swimming pool with sunbathing area and fenced land.
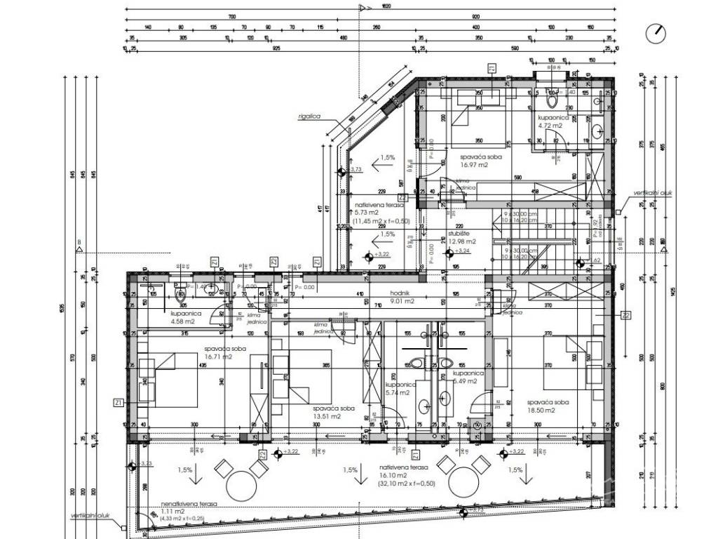
On the first floor there are 4 bedrooms, each with its own bathroom. Three bedrooms have access to a large terrace with a panoramic view of the sea and nature.
On the roof terrace, which is reached by internal stairs, there is a summer kitchen and a jacuzzi.
Heating is provided by an electrically powered heat pump through underfloor heating. A fireplace in the living room can serve as an additional source of heating
the living room, while cooling is provided by air conditioners (all rooms). The carpentry is aluminum with three-layer glass, while the facade is energy-efficient, which ensures low heating and cooling costs. The villa is built with top-quality materials - 25 cm porotherm bricks, ceramics and first-class parquet floors, as well as sanitary facilities.

The villa has a swimming pool of 32 m2 and has two parking spaces. The first phase of video surveillance and alarm system was implemented in the villa.

The planned completion of construction is the summer of 2024.
Características
Tipología
Casa unifamiliar
Contrato
Venta
Planta
1
Plantas del edificio
3
Superficie
291 m² | comercial 967 m²
Habitaciones
5+
Dormitorios
4
Baños
3+
Amueblado
No
Balcón
Garaje, plazas de aparcamiento
1 en aparcamiento/garaje público
Calefacción
Central, alimentación eléctrica
Aire acondicionado
Frío/calor
Otras características
  • Chimenea
  • Puerta blindada
  • Sistema de alarma
Detalle superficie

Vivienda

Planta
1
Superficie
291,0 m²
Coeficiente
100%
Tipo de superficie
Principal
Superficie construida
291,0 m²

Terreno

Planta
Planta baja
Superficie
676,0 m²
Coeficiente
100%
Tipo de superficie
Anexos
Superficie construida
676,0 m²
Información del precio
Precio
Precio a consultar
Eficiencia energética

Consumo de energia

A

Descubre otros ángulos del inmueble
+17
Opciones adicionales

Contactar con el anunciante