Piso de tres habitaciones nuevo, segunda planta, Pješčana Uvala, Vinkuran, Medulin

€ 275.000
3
93 m²
2
2

Nota

Anuncio actualizado el 09/02/2026
Descripción

This description has been translated automatically and may not be accurate

referencia: 1771

Istria, Pula - surroundings

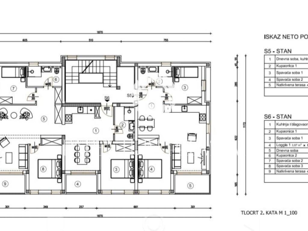
In the vicinity of the Roman city of Pula, this new building with a total of 6 apartments is located in a quiet location.
Apartment "S4" of 93.10m2 is located on the 2nd floor of this building.

The apartment consists of an entrance area through which you can reach a functional kitchen with a dining room with a lot of useful space that connects to the living area, which is separated and connected to the exit to the covered terrace. There are even 3 bedrooms and 2 bathrooms in the apartment, which provides a truly high level of comfort in the living room.

The apartment will have air conditioning in all rooms and electric underfloor heating in the bathroom with the possibility of installing underfloor heating throughout the apartment.

It is possible to choose the final floor coverings in agreement with the investor.

Also, for an extra charge, it is possible to arrange for the apartment to be completely furnished according to the customer's wishes.

The start of construction is planned for November 2025, with completion expected by March 2027.

Apartments can be reserved now.

We are at your disposal for all other information.

Viewing the property is possible with a signed mediation agreement, which is the basis for further action in connection with the sale and commission in accordance with the Act on mediation in real estate transactions. In the case of sales, the agency commission amounts to 3% + VAT and is charged when concluding the pre-contract/sales contract.
Si deseas más información puedes hablar con Manuela Udovičić.
Características
Tipología
Piso
Contrato
Venta
Planta
2 planta
Plantas del edificio
2
Superficie
93 m²
Habitaciones
3
Dormitorios
3
Baños
2
Amueblado
No
Garaje, plazas de aparcamiento
1 en aparcamiento/garaje público
Calefacción
Individual, suelo radiante, alimentación eléctrica
Aire acondicionado
Frío/calor
Información del precio
Precio
€ 275.000
Precio del m²
2.957 €/m²
Eficiencia energética
  • Año de construcción

    2024
  • Estado

    Nuevo / En construcción
  • Calefacción

    Individual, suelo radiante, alimentación eléctrica
  • Aire acondicionado

    Frío/calor
Descubre otros ángulos del inmueble
+6
Opciones adicionales

Contactar con el anunciante

O