Casa unifamiliar 270 m², nueva, Centar - Gulići, Poreč

€ 1.280.000
5+
270 m²
3+
Trastero

Nota

Anuncio actualizado el 09/02/2026
Descripción

This description has been translated automatically and may not be accurate

referencia: 2099

Istria, Poreč area

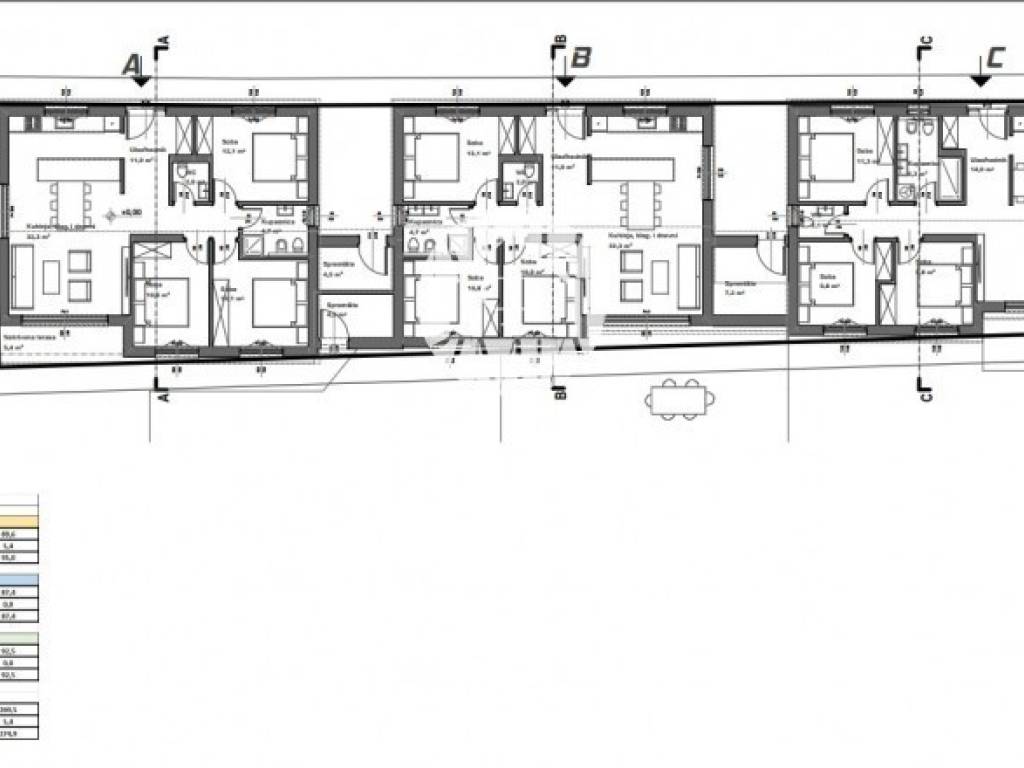
Three houses in a row for sale, in a quiet and sought-after location near Poreč.
Each house has an entrance hall, living room with kitchen and dining room with access to the yard, three bedrooms, bathroom, toilet and storage room.
The houses will be built with top quality materials, electric underfloor heating, air conditioning, Kömmerling joinery with electric roller shutters and mosquito nets, 10cm polystyrene insulation, double ventilated roof, pergola on the parking space.
The last house will have a swimming pool 8.5mx3.5m.
This project is ideal for investment in tourist rental purposes and return on investment or family life together!

Viewing the property is possible with a signed mediation agreement, which is the basis for further action in connection with the sale and commission in accordance with the Act on mediation in real estate transactions. In the case of sales, the agency commission amounts to 3% + VAT and is charged when concluding the pre-contract/sales contract.
Si deseas más información puedes hablar con Ivica Barić.
Características
Tipología
Casa unifamiliar
Contrato
Venta
Planta
1
Superficie
270 m² | comercial 1.744 m²
Habitaciones
5+
Dormitorios
9
Baños
3+
Amueblado
No
Garaje, plazas de aparcamiento
1 en aparcamiento/garaje público
Calefacción
Individual, suelo radiante, alimentación eléctrica
Aire acondicionado
Frío/calor
Otras características
  • Piscina
Detalle superficie

Vivienda

Planta
1
Superficie
270,0 m²
Coeficiente
100%
Tipo de superficie
Principal
Superficie construida
270,0 m²

Terreno

Planta
Planta baja
Superficie
1.474,0 m²
Coeficiente
100%
Tipo de superficie
Anexos
Superficie construida
1.474,0 m²
Información del precio
Precio
€ 1.280.000
Precio del m²
734 €/m²
Eficiencia energética
  • Año de construcción

    2025
  • Estado

    Nuevo / En construcción
  • Calefacción

    Individual, suelo radiante, alimentación eléctrica
  • Aire acondicionado

    Frío/calor
Descubre otros ángulos del inmueble
+16
Opciones adicionales

Contactar con el anunciante

O