Piso de dos habitaciones nuevo, planta baja, Centar - Gulići, Poreč

€ 323.000
2
84 m²
2
1
Trastero

Nota

Anuncio actualizado el 09/02/2026
Descripción

This description has been translated automatically and may not be accurate

referencia: 2150

Istria, Poreč Modern two-bedroom apartment with a large garden

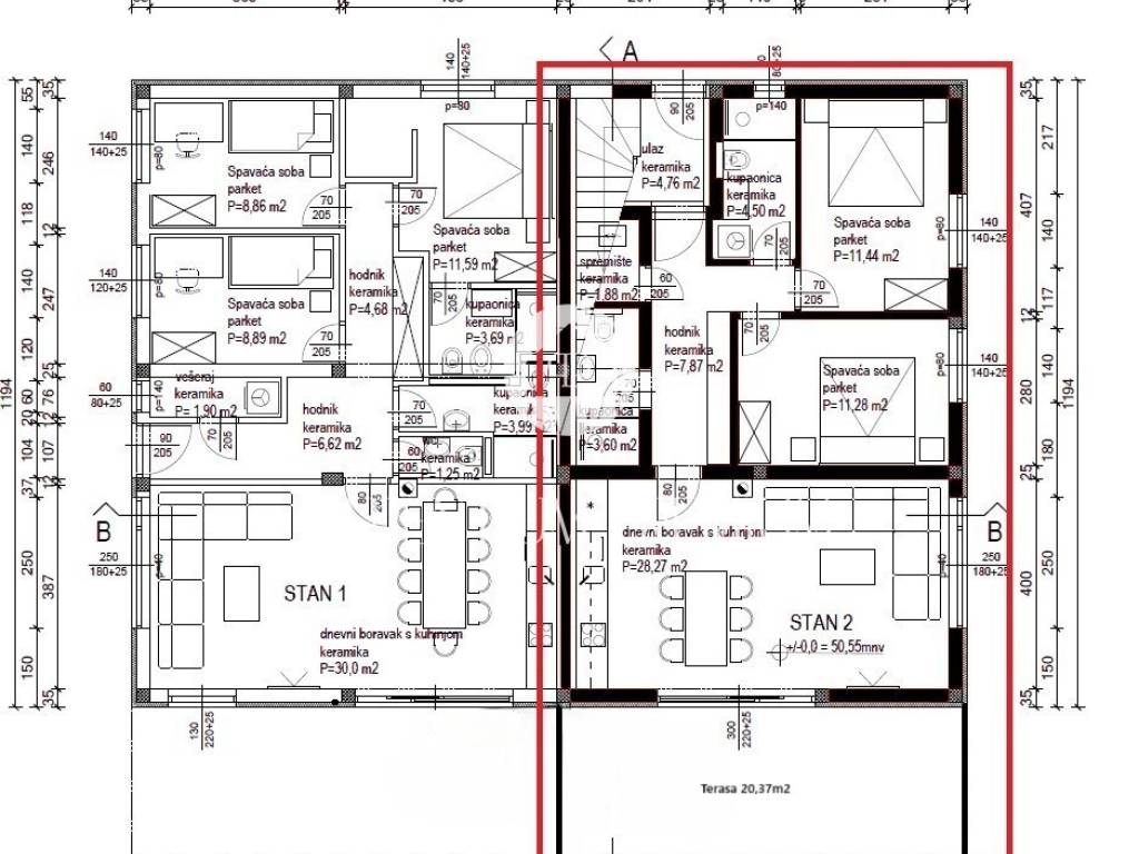
An apartment for sale, located on the ground floor of a smaller residential building with a total of four apartments, only 2 km from the centre of Poreč and the sea.

The apartment has a total living area of 68.84 m and consists of an entrance hall, storage room, two bathrooms, two bedrooms, and a spacious living room with kitchen and dining area.
Terrace area: (actual size 38 m: 60% covered, 40% uncovered) 15.20 m calculated using coefficients of 0.25 and 0.50.
Total apartment area including terrace coefficients: 84.04 m.

High-quality materials and equipment are used in construction:

Daikin air-conditioning units are planned in every room,

bathrooms will be equipped with higher-standard sanitary ware,

LVT click-system vinyl flooring is planned in the bedrooms, with the possibility of choosing a different type of flooring upon agreement or with an additional charge agreed with the investor.

The apartment is sold on a turnkey basis, without furniture and lighting fixtures.
The apartment includes a parking space in front of the building.

Thanks to its quiet location and close proximity to all amenities necessary for everyday living, this apartment represents an ideal solution for family living as well as a safe investment for the future.

Viewing the property is possible with a signed mediation agreement, which is the basis for further action in connection with the sale and commission in accordance with the Act on mediation in real estate transactions. In the case of sales, the agency commission amounts to 3% + VAT and is charged when concluding the pre-contract/sales contract.
Si deseas más información puedes hablar con Ivica Barić.
Características
Tipología
Piso
Contrato
Venta
Planta
1
Superficie
84 m² | comercial 179 m²
Habitaciones
2
Dormitorios
2
Baños
2
Amueblado
No
Garaje, plazas de aparcamiento
1 en aparcamiento/garaje público
Calefacción
Individual, alimentación eléctrica
Aire acondicionado
Frío/calor
Detalle superficie

Vivienda

Planta
1
Superficie
84,0 m²
Coeficiente
100%
Tipo de superficie
Principal
Superficie construida
84,0 m²

Terreno

Planta
Planta baja
Superficie
95,0 m²
Coeficiente
100%
Tipo de superficie
Anexos
Superficie construida
95,0 m²
Información del precio
Precio
€ 323.000
Precio del m²
1.804 €/m²
Eficiencia energética
  • Año de construcción

    2025
  • Estado

    Nuevo / En construcción
  • Calefacción

    Individual, alimentación eléctrica
  • Aire acondicionado

    Frío/calor
Descubre otros ángulos del inmueble
+8
Opciones adicionales

Contactar con el anunciante

O