Piso de dos habitaciones nuevo, planta baja, Mugeba - Valkarin, Poreč

€ 342.500
2
86 m²
2
1
Trastero

Nota

Anuncio actualizado el 14/04/2026
Descripción

This description has been translated automatically and may not be accurate

referencia: 2187_0214

Istria, Poreč surroundings

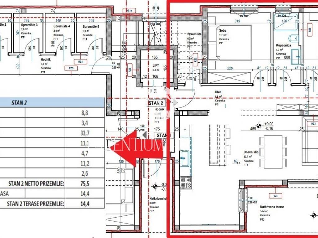
For sale is an apartment with a net living area of 75.5 m plus a covered terrace of 14.4 m net, located on the ground floor of a high-quality residential building with an elevator, currently under construction.
The modern building with a total of six residential units is situated in a quiet location near the town of Poreč and the sea.

The apartment consists of an entrance hall, storage room, WC, two spacious bedrooms, a bathroom, and an open-space living room with kitchen and dining area, with access to a covered terrace and a private garden of 400 m, ideal for creating a private oasis with a pool, summer kitchen, or a relaxation area for social gatherings.

Heating and cooling are provided by three air-conditioning units connected to one outdoor unit, while the entire apartment features electric underfloor heating.

Windows will be PVC with triple glazing and shutters, and all windows will include mosquito screens.
Thermal insulation will be made of 10 cm styrofoam combined with mineral wool, ensuring high energy efficiency and pleasant indoor temperatures throughout the year.

At this stage of construction, the buyer can choose ceramic tiles and floor coverings up to the price of 50/m.

The apartment includes two parking spaces in front of the building, with the possibility of purchasing an additional storage room on the ground floor.

The buyer is exempt from paying real estate transfer tax.

Completion of construction is planned for autumn 2026.

Dont miss this opportunity the perfect apartment for comfortable living with a large private garden or as a great investment!

Viewing the property is possible with a signed mediation agreement, which is the basis for further action in connection with the sale and commission in accordance with the Act on mediation in real estate transactions. In the case of sales, the agency commission amounts to 3% + VAT and is charged when concluding the pre-contract/sales contract.
Si deseas más información puedes hablar con Ivica Barić.
Características
Tipología
Piso
Contrato
Venta
Planta
1
Superficie
86 m² | comercial 486 m²
Habitaciones
2
Dormitorios
2
Baños
2
Amueblado
No
Garaje, plazas de aparcamiento
1 en aparcamiento/garaje público
Calefacción
Individual, suelo radiante, alimentación eléctrica
Aire acondicionado
Frío/calor
Detalle superficie

Vivienda

Planta
1
Superficie
86,0 m²
Coeficiente
100%
Tipo de superficie
Principal
Superficie construida
86,0 m²

Terreno

Planta
Planta baja
Superficie
400,0 m²
Coeficiente
100%
Tipo de superficie
Anexos
Superficie construida
400,0 m²
Información del precio
Precio
€ 342.500
Precio del m²
705 €/m²
Eficiencia energética
  • Estado

    Nuevo / En construcción
  • Calefacción

    Individual, suelo radiante, alimentación eléctrica
  • Aire acondicionado

    Frío/calor
  • Certificación energética

    Exento
Descubre otros ángulos del inmueble
+4
Opciones adicionales

Contactar con el anunciante

O