Piso de dos habitaciones nuevo, primera planta, Darda

€ 2.200
2
55 m²
1
1
No
Balcón

Nota

Anuncio actualizado el 16/02/2026
Descripción

referencia: S809

Na atraktivnoj lokaciji sami centar Darde, u izgradnji je zgrada u kojoj svaki stan ima svoje parkirno mjesto, te je u blizini trgovina, javnog prijevoza i caffe barova.

Projekt se sastoji od jedne zgrade s prizemljem i 1. katom, na svakoj etaži je smješteno 8 stanova, visokog standarda i opremljenosti, kao i njihovi prateći sadržaji.

Stanovi su veličine od 31 m2 do 64 m2 te raspolažu s jednom spavaćom sobom i dodatnim sadržajem. Svakom stanu je predviđeno jedno parking mjesto. Stanovi u prizemlju raspolažu s terasom i sa privatnim vrtom, dok stanovi na katu imaju balkon.

OPREMA

Svaki stan je opremljen podnim grijanjem. Klizni sistemi i prozori su od visokokvalitetnih PVC profila, vrhunske zvučne izolacije i protuprovalne zaštite, ostakljeni termo izolacijskim staklom. Unutarnja su vrata modernog dizajna. Kupac ima mogućnost izbora ugradnje parkata ili keramike.

TEHNIČKI OPIS

KONSTRUKCIJA

- stanovi odmaknuti od prometnice više od 16 m
- osiguran pristup invalidnim osobama na razini prizemlje u oba ulaza
- konstrukcija zgrade je zidana, sa AB ojačanjima i monolitnim AB pločama
- komforno stubište, visina stuba 15 cm, širina gazišta 33 cm
- na parkiralištu je izvedena priprema za punjenje električnih automobila
- ravni krov je izoliran sa 25 cm toplinskom izolacijom

FASADA

· ETICS sustav s 15 cm toplinskom izolacijom

GRIJANJE, TOPLA VODA I HLAĐENJE

- Podno grijanje instalirano u cijelom stanu
- Spremnik potrošne tople vode
- grijanje i hlađenje je preko dizalica topline, sa unutarnjim fan coilerima

ELEKTRO INSTALACIJE

- elektrooprema visoke kvalitete renomiranih dobavljača
- elektro brojila smještena su izvan objekta
- u svim sobama predviđene su antenske utičnice

PODNA OBLOGA

PARKET

- kvalitetan troslojni parket većih dimenzija

KERAMIKA

- kvalitetne pločice sa mogućnošću biranja

STOLARIJA

- PVC stolarija renomiranog proizvođača
- staklene stijene
- ostakljenje je IZO staklo
- toplinski izolirane aluminijske eslingen rolete
- komarnici na svim prozorima

KUPAONICE

- Kupaonice su opremljene prvoklasnom opremom ugradbeni vodoktolići, školjka, umivaonik, tuš kada renomiranih proizvođa

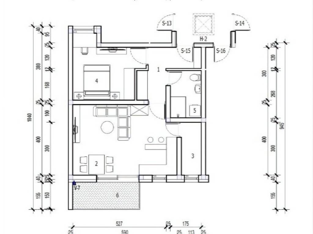
U ponudi je dvosobni stan s balkonom oznake S-15 na 1.katu zgrade.

Sastoji se od:

- ulaznog prostora i garderobe 7,02 m2
- kupaonice s wc-om 4,75 m2
- dnevnog boravka s kuhinjom i blagovaonom 23,08 m2
- sobe 11,28 m2
- izbe 3,53 m2
- UKUPNO ZATVORENO: 49,66 m2
- balkona 5,62 m2
- SVEUKUPNO S-15: 55,28 m2
Stanu pripada vanjsko parkirno.

Planirani početak gradnje 3/2026. Predviđeni rok završetka gradnje: 10/2027.

Energetski certifikat: A+

Kupac ne plaća agencijsku proviziju.
Si deseas más información puedes hablar con Antonija Bošnjaković.
Características
Tipología
Piso | Tipo de inmueble medio
Contrato
Venta
Planta
1 planta
Plantas del edificio
1
Ascensor
No
Superficie
55 m²
Habitaciones
2
Dormitorios
1
Baños
1
Balcón
Terraza
No
Información del precio
Precio
€ 2.200
Precio del m²
40 €/m²
Eficiencia energética
  • Año de construcción

    2027
  • Estado

    Nuevo / En construcción
  • Certificación energética

    Pendiente de certificación
Opciones adicionales

Contactar con el anunciante

O
agent male

Antonija Bošnjaković