Piso de dos habitaciones nuevo, primera planta, Vodice

€ 185.000
2
63 m²
1
1
No
Terraza

Nota

Anuncio actualizado el 10/03/2026
Descripción

This description has been translated automatically and may not be accurate

referencia: S2306

OPORTUNIDAD - Apartamento S5 en el primer piso, NUEVA CONSTRUCCIÓN

En venta edificio residencial moderno en construcción con un total de 12 apartamentos, ubicado en una zona tranquila en Vodice, a 1100 m de la playa y 1600 m del centro de la ciudad.
El proyecto se realiza según los estándares de construcción más recientes, utilizando materiales de calidad y equipamiento moderno, lo que garantiza una alta eficiencia energética y un valor a largo plazo.

Entre el equipamiento destacamos:

- Carpintería de PVC con vidrio triple


- Mosquiteras en todas las aberturas


- Cerámica en la sala de estar y cocina


- Laminado en los dormitorios


- Aire acondicionado (3,5 kW) en la sala de estar


- Calefacción por suelo radiante en los baños


- Barandillas de vidrio en las terrazas


- Potencia contratada de 5,75 kW por apartamento


- Sistema de aislamiento Sika y Mapei



El edificio está en el régimen de IVA, lo que significa que los compradores no pagan impuesto sobre transmisiones patrimoniales.

POSIBILIDAD DE COMPRA MEDIANTE CRÉDITO HIPOTECARIO

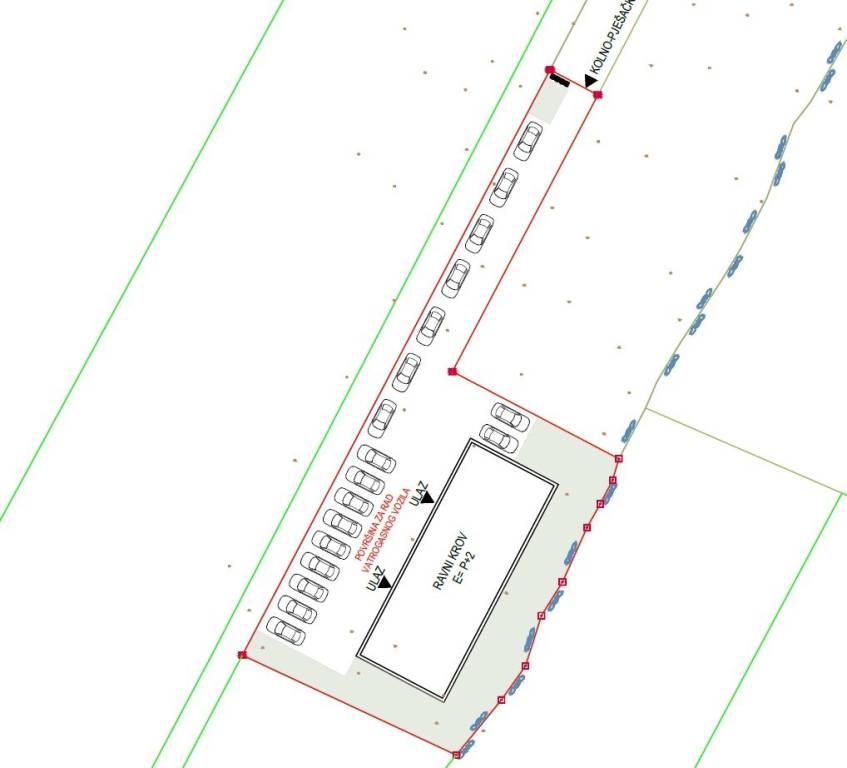
Se asegura 1 plaza de aparcamiento por apartamento, con posibilidad de compra de plaza adicional por un precio de 5.000 €.

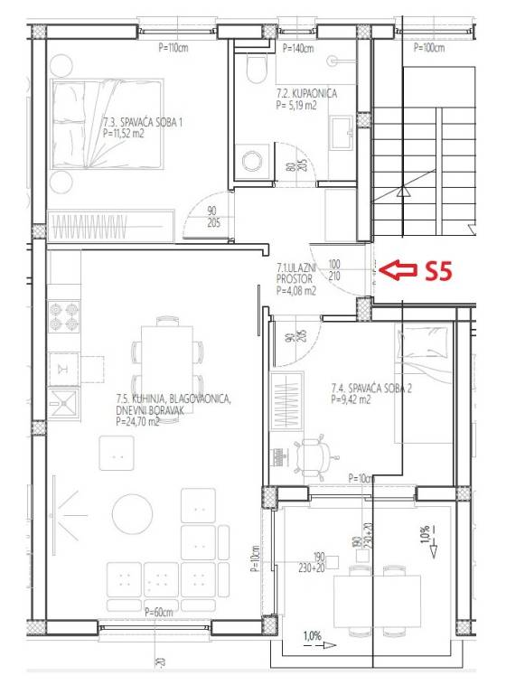
EL APARTAMENTO S5 tiene 63,72 m2 de superficie útil neta con coeficientes incluidos, y consta de: entrada, 2 dormitorios, baño, cocina y comedor, sala de estar, terraza y 1 plaza de aparcamiento. El precio es de 185.000 € (El comprador está exento del pago del 3% de impuesto sobre transmisiones patrimoniales).

OTROS DISPONIBLES EN EL EDIFICIO:

PLANTA BAJA:

LOCAL COMERCIAL 1 tiene 71,05 m2 de superficie útil neta con coeficientes incluidos, y consta de: entrada, 2 dormitorios, baño, cocina y comedor, sala de estar, terraza, jardín aprox. 100 m2, y 1 plaza de aparcamiento. El precio es de 205.000 € (El comprador está exento del pago del 3% de impuesto sobre transmisiones patrimoniales).

LOCAL COMERCIAL 2 VENDIDO

APARTAMENTO S1 tiene 61,19 m2 de superficie útil neta con coeficientes incluidos, y consta de: entrada, 2 dormitorios, baño, cocina y comedor, sala de estar, terraza, jardín aprox. 37 m2, y 1 plaza de aparcamiento. El precio es de 180.000 € (El comprador está exento del pago del 3% de impuesto sobre transmisiones patrimoniales).

APARTAMENTO S2 VENDIDO

PRIMER PISO:

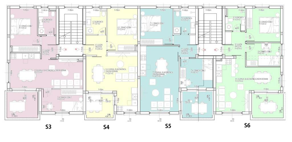
APARTAMENTO S3 tiene 62,33 m2 de superficie útil neta con coeficientes incluidos, y consta de: entrada, 2 dormitorios, baño, cocina y comedor, sala de estar, terraza, y 1 plaza de aparcamiento. El precio es de 175.000 € (El comprador está exento del pago del 3% de impuesto sobre transmisiones patrimoniales).

APARTAMENTO S4 VENDIDO

APARTAMENTO S6 tiene 60,76 m2 de superficie útil neta con coeficientes incluidos, y consta de: entrada, 2 dormitorios, baño, cocina y comedor, sala de estar, terraza, y 1 plaza de aparcamiento. El precio es de 200.000 € (El comprador está exento del pago del 3% de impuesto sobre transmisiones patrimoniales).

SEGUNDO PISO:

APARTAMENTO S7 tiene 62,33 m2 de superficie útil neta con coeficientes incluidos, y consta de: entrada, 2 dormitorios, baño, cocina y comedor, sala de estar, terraza, y 1 plaza de aparcamiento. El precio es de 175.000 € (El comprador está exento del pago del 3% de impuesto sobre transmisiones patrimoniales).

APARTAMENTO S8 VENDIDO

APARTAMENTO S9 tiene 63,72 m2 de superficie útil neta con coeficientes incluidos, y consta de: entrada, 2 dormitorios, baño, cocina y comedor, sala de estar, terraza, y 1 plaza de aparcamiento. El precio es de 185.000 € (El comprador está exento del pago del 3% de impuesto sobre transmisiones patrimoniales).

APARTAMENTO S10 tiene 60,76 m2 de superficie útil neta con coeficientes incluidos, y consta de: entrada, 2 dormitorios, baño, cocina y comedor, sala de estar, terraza, y 1 plaza de aparcamiento. El precio es de 200.000 € (El comprador está exento del pago del 3% de impuesto sobre transmisiones patrimoniales).
Características
Tipología
Piso | Tipo de inmueble medio
Contrato
Venta
Planta
1 planta
Ascensor
No
Superficie
63 m²
Habitaciones
2
Dormitorios
2
Baños
1
Balcón
No
Terraza
Calefacción
Individual, suelo radiante
Aire acondicionado
Individual
Otras características
  • Puerta blindada
Información del precio
Precio
€ 185.000
Precio del m²
2.937 €/m²
Eficiencia energética
  • Año de construcción

    2026
  • Estado

    Nuevo / En construcción
  • Calefacción

    Individual, suelo radiante
  • Aire acondicionado

    Individual
Plano
Descubre otros ángulos del inmueble
+8
Opciones adicionales

Contactar con el anunciante

O