Terreno urbanizable en Venta

€ 350.000
917 m²

Nota

Anuncio actualizado el 25/03/2026
Descripción

referencia: 431

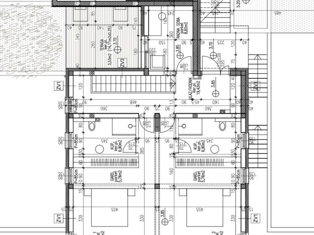
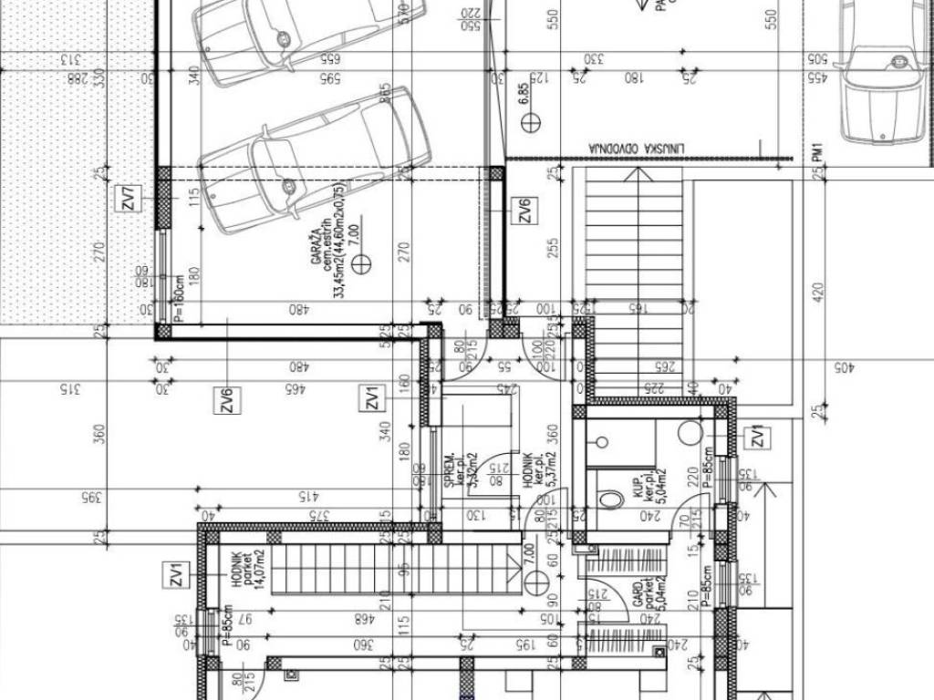
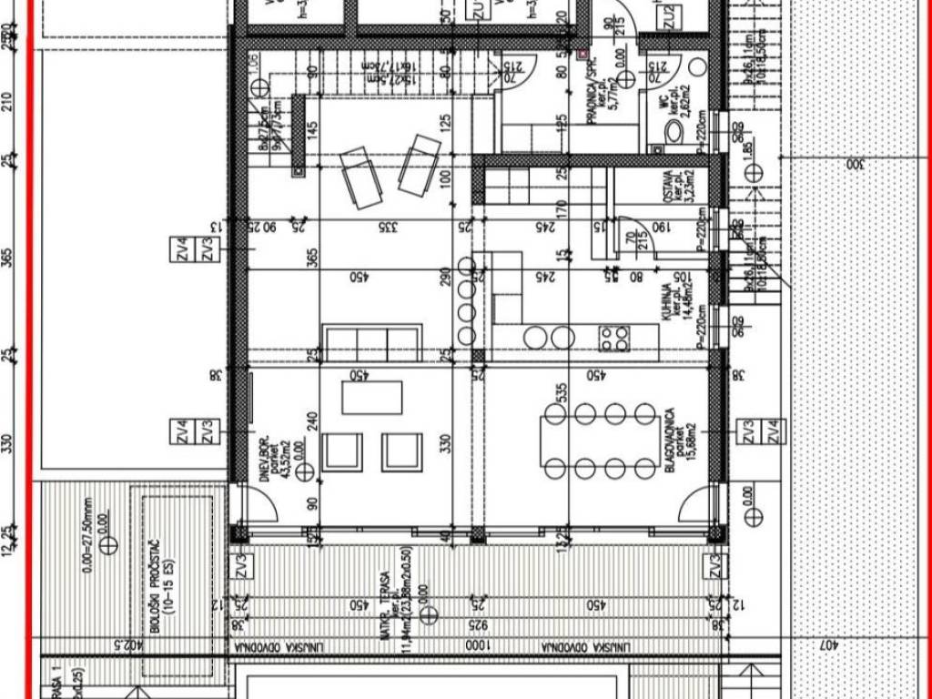
Na prodaju je građevinsko zemljište površine 917 m² smješteno u Zatoglavu. Parcela se nalazi 50 metara od mora uz pristupni put, što joj osigurava otvoren i trajan pogled na more. Pored parcele nalazi se sva infrastruktura.

Parcela ima projekt za izgradnju vile, što budućem vlasniku omogućuje brži početak gradnje i jasnu viziju budućeg razvoja.
Zemljište posjeduje pravomoćnu građevinsku dozvolu, spremno za realizaciju projekta.

Plaža je udaljena svega 50 metara ispod zemljišta, što osigurava atraktivnu lokaciju i neposrednu blizinu mora.

Za sve dodatne informacije i dogovor o razgledavanju, stojimo na raspolaganju.

ID CODE: 431

Andro Jakoliš
Mob: +385 99 347 3562
E-mail: andro@materra.estate
www.materra.estate
Características
Contrato
Venta
Tipología
Terreno urbanizable
Superficie
917 m²
Información del precio
Precio
€ 350.000
Precio del m²
382 €/m²
Descubre otros ángulos del inmueble
+10
Opciones adicionales

Contactar con el anunciante

O