Piso de tres habitaciones nuevo, planta baja, Korčula

€ 242.000
3
85 m²
1
B
Terraza

Nota

Anuncio actualizado el 03/04/2026
Descripción

This description has been translated automatically and may not be accurate

referencia: 45387

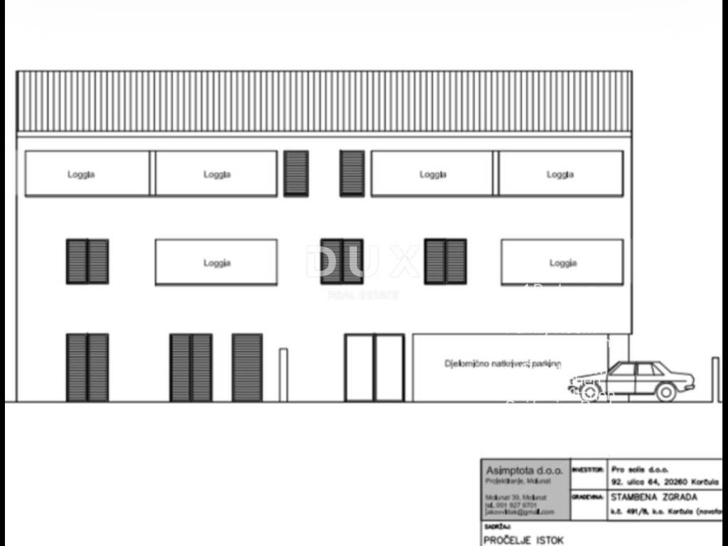
KORČULA, TOWN OF KORČULA - modern apartment in a new building, 85m2!

In one of the most desirable parts of the town of Korčula, as part of the Project Economy project, there is a modern residential building with a total of seven apartments, designed for those seeking peace, privacy and an authentic Mediterranean atmosphere in an environment dominated by the local population.

For sale is a three-bedroom apartment with its own garden, carefully designed to provide maximum comfort and functionality. The kitchen and dining area are harmoniously connected to the outdoor terrace and garden, creating a natural extension of the living space and a perfect place for relaxing or socializing outdoors.

The apartment is planned to be classically, high-quality equipped, with the possibility of agreeing on the selection and installation of sanitary ware according to the wishes of the future owner (not included in the price), with an investor's budget of up to 20 million. The additional value of the property is reflected in the possibility of installing underfloor heating, as well as equipping all rooms with modern inverter air conditioners, which ensures a high level of comfort throughout the year.

Construction is scheduled to be completed by the end of 2026, giving future owners the opportunity to participate in the final design and customize the space to their own wishes, with the security of new construction and modern standards.

This property represents an excellent opportunity for a peaceful family life or a long-term investment in one of the most prestigious Adriatic locations!

For more information, please contact us with confidence.

Dear clients, the agency commission is charged in accordance with the General Terms and Conditions:
www.dux-nekretnine.hr/opci-uvjeti-poslovanja

ID CODE: 45387

DUX Rijeka
Mob: +385 91 330 0596
Tel: +385 91 480 8808
E-mail: info@dux-nekretnine.hr
www.dux-nekretnine.hr
Características
Tipología
Piso
Contrato
Venta
Planta
Planta baja
Superficie
85 m²
Habitaciones
3
Dormitorios
2
Baños
1
Balcón
No
Terraza
Información del precio
Precio
€ 242.000
Precio del m²
2.847 €/m²
Eficiencia energética
  • Estado

    Nuevo / En construcción
  • Certificación energética

    Exento
Descubre otros ángulos del inmueble
+4
Opciones adicionales

Contactar con el anunciante

O