Piso de dos habitaciones nuevo, Vodice

€ 359.200
2
89 m²
2
No

Nota

Anuncio actualizado el 09/04/2026
Descripción

This description has been translated automatically and may not be accurate

referencia: S232

A luxury two-bedroom apartment is offered for sale, located in a small residential building with only three residential units, ensuring a high level of privacy and a peaceful living environment. The property is being constructed according to the highest standards, with completion planned for the second half of 2027.

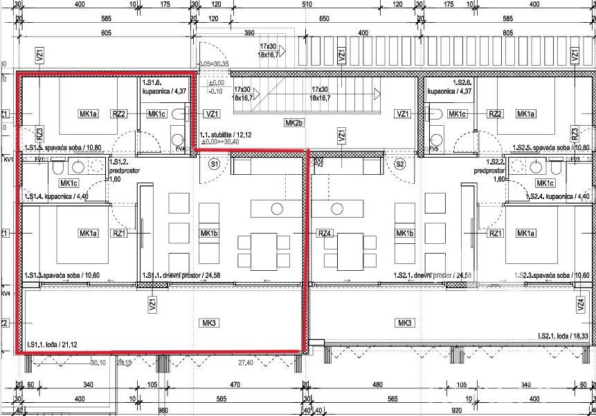
The apartment features an enclosed living area of 56.35 m2, comprising an entrance hall, an open-plan kitchen, dining area, and living room with access to a spacious 21.12 m2 loggia. The apartment includes two bedrooms, one of which has direct access to the loggia, as well as two elegantly designed bathrooms.

Additional value is provided by a basement storage room of 10.11 m2 and two private parking spaces belonging to the apartment.

The apartment will be equipped with premium-quality materials and high-end fittings, with an emphasis on luxury, elegance, functionality, and long-lasting quality—ideal for year-round living or as an attractive investment.

The price includes VAT, and the buyer is exempt from paying the 3% real estate transfer tax.

Located in Vodice, one of the most desirable destinations on the Adriatic, known for its well-maintained beaches, crystal-clear sea, and rich gastronomic and social offer. The combination of Mediterranean charm and modern infrastructure makes Vodice an excellent choice for living, vacationing, or property investment.

For more information or to arrange a viewing, please feel free to contact us.



Die Vermittlungsprovision beträgt 2 % zuzüglich Mehrwertsteuer des Kaufpreises.
Características
Tipología
Piso | Tipo de inmueble medio
Contrato
Venta
Ascensor
No
Superficie
89 m²
Habitaciones
2
Dormitorios
2
Baños
2
Balcón
No
Terraza
No
Calefacción
Individual, por aire
Aire acondicionado
Individual
Otras características
  • Puerta blindada
Información del precio
Precio
€ 359.200
Precio del m²
4.036 €/m²
Eficiencia energética
  • Año de construcción

    2027
  • Estado

    Nuevo / En construcción
  • Calefacción

    Individual, por aire
  • Aire acondicionado

    Individual
Descubre otros ángulos del inmueble
+8
Opciones adicionales

Contactar con el anunciante

O