1/8


Piso de cuatro habitaciones nuevo, entresuelo, Mlaka, Rijeka
€ 405.000
Anuncio actualizado el 25/02/2026
Descripción
referencia: 130-490
ID CODE: 130-490
MANOR NEKRETNINE d.o.o.
Mob: +385 99 365 7230
Tel: +385 51 504 909
E-mail: info@manor.hr
www.manor.hr
Características
- Tipología
- Piso
- Contrato
- Venta
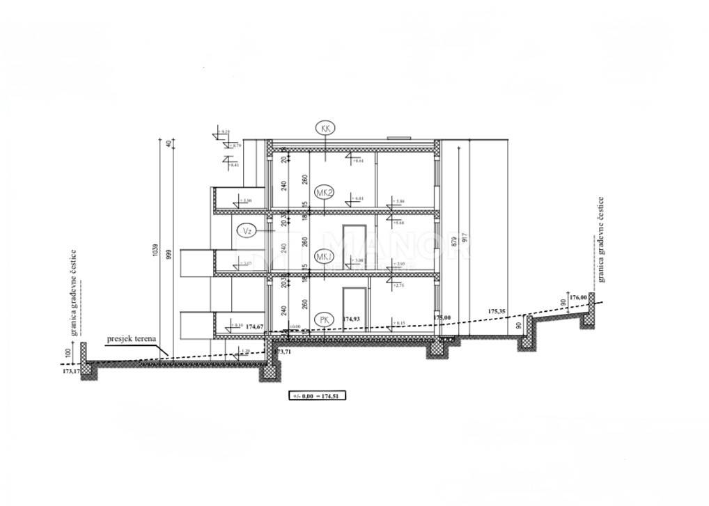
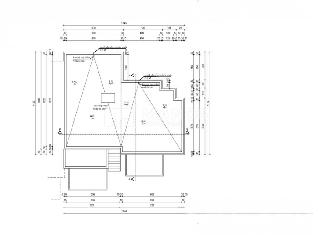
- Planta
- Entresuelo
- Ascensor
- Sí
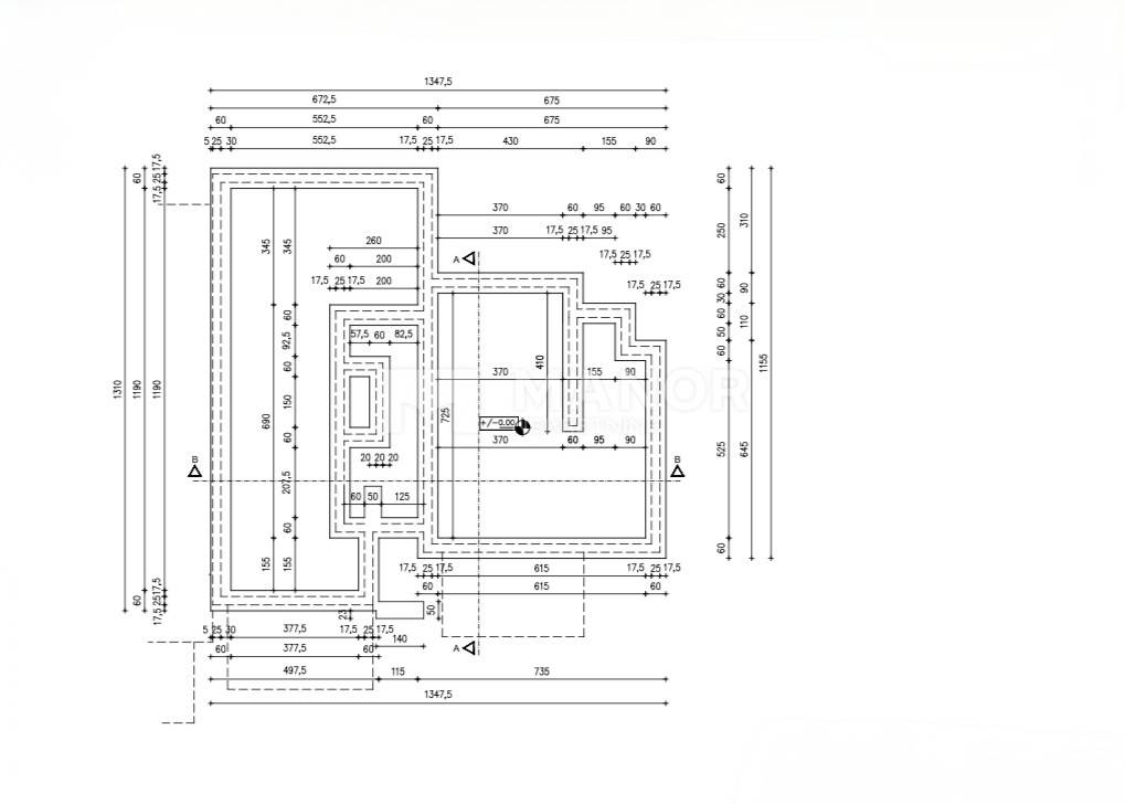
- Superficie
- 114 m²
- Habitaciones
- 4
- Dormitorios
- 3
- Baños
- 2
- Balcón
- Sí
- Terraza
- No
- Aire acondicionado
- Individual, frío/calor
Información del precio
- Precio
- € 405.000
- Precio del m²
- 3.553 €/m²
Eficiencia energética
Estado
Nuevo / En construcciónAire acondicionado
Individual, frío/calorCertificación energética
Exento
Descubre otros ángulos del inmueble
Opciones adicionales