Piso de tres habitaciones Male vruje, Vodice

€ 606.892
3
137 m²
1
Balcón
Terraza

Nota

Anuncio actualizado el 03/03/2026
Descripción

referencia: EUROVILLA-271403

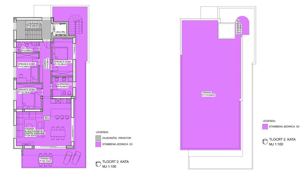
Na iznimnoj lokaciji u centru Vodica, svega 200 metara od mora, nalazi se ovaj prostrani penthouse na drugom katu novogradnje visoke kvalitete, neto korisne površine 137,93 m². Stanu pripadaju dva privatna parkirna u dvorištu zgrade, te krovna terasa koja se prostire cijelom površinom krova. Ukupna zatvorena površina stana iznosi 86,72 m².Stan je funkcionalno i moderno osmišljen, a sastoji se od prostranog dnevnog boravka s kuhinjom i blagovaonicom, tri spavaće sobe, kupaonice te zasebnog toaleta. Iz dnevnog boravka izlazi se na veliku terasu površine 50,73 m², te dalje stepenicama na krovnu terasu površine 114,06 m², opremljenu jacuzziem, vanjskim tušem i pergolom ispod koje je predviđena ljetna kuhinja.Zgrada je građena prema najvišim standardima gradnje i opreme. Izdvajamo:dizalopodno grijanje na toplinsku pumpuMitsubishi klima uređaje u svim prostorijamavrhunsku stolariju s troslojnim staklomvideo parlafonpripremu za punionicu električnih vozila na parkirnom mjestupametnu parking rampu s očitavanjem registarskih oznakaLokacija zgrade dodatno povećava vrijednost nekretnine - mirna, a istovremeno centralna pozicija, na nekoliko minuta hoda od mora, plaže i svih sadržaja, čini ovu novogradnju jednom od rijetkih i najpoželjnijih u ovom dijelu Vodica.Za sve dodatne informacije i razgledavanje, slobodno nas kontaktirajte.... Više na eurovilla.hr, ID: 271403
Si deseas más información puedes hablar con Domagoj Matić.
Características
Tipología
Ático
Contrato
Venta
Planta
1
Superficie
137 m²
Habitaciones
3
Dormitorios
3
Balcón
Terraza
Detalle superficie

Vivienda

Planta
1
Superficie
137,9 m²
Coeficiente
100%
Tipo de superficie
Principal
Superficie construida
137,9 m²
Información del precio
Precio
€ 606.892
Precio del m²
4.430 €/m²
Eficiencia energética
  • Estado

    Nuevo / En construcción
  • Certificación energética

    Exento
Plano
Descubre otros ángulos del inmueble
+24
Opciones adicionales

Contactar con el anunciante

O