Piso de dos habitaciones Omiš, Omiš

€ 264.045
2
60 m²
4
Terraza

Nota

Anuncio actualizado el 03/03/2026
Descripción

referencia: EUROVILLA-284421

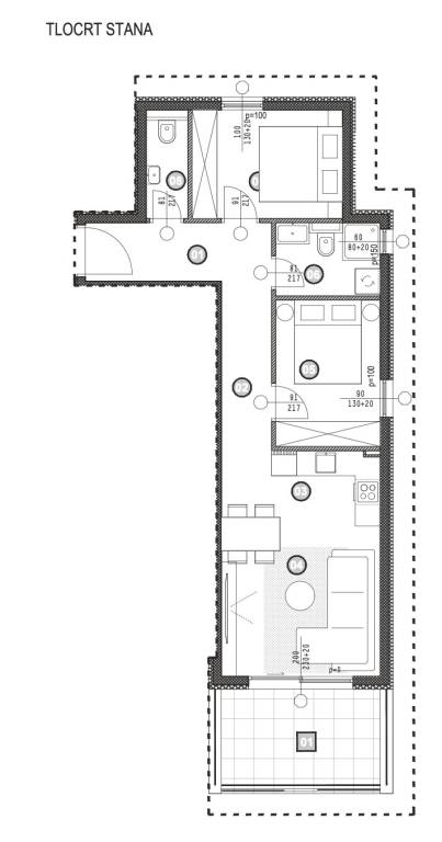
Omiš, moderan stambeno-poslovna zgrada s ukupno dvanaest stambenih jedinica - predivan i otvoren pogled na more.STAN 10- dvosoban stan na četvrtom katu zatvorene površine 55,95 m2, s balkonom površine 9,50 m2.Stan se sastoji se od ulaznog hodnika, dvije spavaće sobe, jedne kupaonice, jednog WCa, kuhinje s blagovaonicom, te dnevnog boravka s izlazom na balkon.Uz stan moguća je kupnja privatne garaže površine 16, 56 m2 po cijeni od 22 000, 00 EUR-a, te vanjskog parkrinog mjesta površine 12, 50 m2 po cijeni od 17 000, 00 EUR-a.Useljenje je predviđeno krajem 2026. godine.Oprema: podno grijanje u kupaonicama, klimatizirana svaka prostorija, ALU stolarija, protuprovalna ulazna vrata, verhnski parket, keramika i sanitarna oprema...Lokacija - na dvije minute vožnje od centra Omiša, okružena zelenilom i s predivnim pogledom na more. Najbliža plaža je udaljena 200 metara zračne linije.Za sve ostale informacije stojimo Vam na raspolaganju.... Više na eurovilla.hr, ID: 284421
Si deseas más información puedes hablar con Lana Pirija.
Características
Tipología
Piso
Contrato
Venta
Planta
4
Superficie
60 m²
Habitaciones
2
Dormitorios
2
Terraza
Detalle superficie

Vivienda

Planta
4
Superficie
60,7 m²
Coeficiente
100%
Tipo de superficie
Principal
Superficie construida
60,7 m²
Información del precio
Precio
€ 264.045
Precio del m²
4.401 €/m²
Eficiencia energética
  • Estado

    Nuevo / En construcción
  • Certificación energética

    Exento
Plano
Descubre otros ángulos del inmueble
+18
Opciones adicionales

Contactar con el anunciante

O