Piso de una habitación Trogir, Seget

€ 159.000
1
44 m²
B

Nota

Anuncio actualizado el 03/03/2026
Descripción

referencia: EUROVILLA-371516

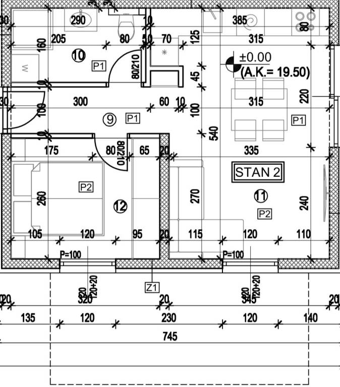
Trogir, jednosoban stan smješten u suterenu stambene zgrade.Stan oznake Z5 – S2 sastoji se od ulaznog hodnika, spavaće sobe, kupaonice, kuhinje s blagovaonicom te dnevnog boravka.Površina zatvorenog stambenog prostora iznosi 35.57 m2. Stanu dodatno pripada vrt površine 63.60 m2, koji osigurava veću razinu privatnosti te pruža mogućnost uređenja prema vlastitim željama.U cijenu je uključeno jedno vanjsko parkirno mjesto.Nekretnina je idealna za miran obiteljski život u neposrednoj blizini svih potrebnih sadržaja (trgovački centar Marisa, vrtić i ostalo), kao i za odmor ili investiciju u turistički najam.Za dodatne informacije, stojimo Vam na raspolaganju.... Više na eurovilla.hr, ID: 371516
Si deseas más información puedes hablar con Ivan Didović.
Características
Tipología
Piso
Contrato
Venta
Planta
Planta baja
Superficie
44 m²
Habitaciones
1
Dormitorios
1
Detalle superficie

Vivienda

Planta
Planta baja
Superficie
44,4 m²
Coeficiente
100%
Tipo de superficie
Principal
Superficie construida
44,4 m²
Información del precio
Precio
€ 159.000
Precio del m²
3.614 €/m²
Eficiencia energética
  • Estado

    Nuevo / En construcción
  • Certificación energética

    Exento
Plano
Descubre otros ángulos del inmueble
+19
Opciones adicionales

Contactar con el anunciante

O