Piso de tres habitaciones Male vruje, Vodice

€ 503.790
3
119 m²
1
Balcón
Terraza

Nota

Anuncio actualizado el 03/03/2026
Descripción

referencia: EUROVILLA-602562

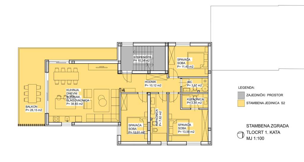
Na iznimnoj lokaciji u centru Vodica, svega 200 metara od mora, nalazi se ovaj prostrani apartman na prvom katu novogradnje visoke kvalitete, neto korisne površine 119,95 m². Nekretnini pripadaju dva privatna parkirna mjesta u dvorištu zgrade. Ukupna zatvorena površina stana iznosi 100,84 m².Stan je funkcionalno i moderno osmišljen, a sastoji se od prostranog dnevnog boravka s kuhinjom i blagovaonicom, tri spavaće sobe (od kojih jedna ima vlastitu kupaonicu), dodatne kupaonice te zasebnog toaleta. Iz dnevnog boravka izlazi se na veliku terasu površine 28,15 m², koja čini savršen prostor za boravak na otvorenom.Zgrada je građena prema najvišim standardima gradnje i opreme. Izdvajamo:podno grijanje na toplinsku pumpuMitsubishi klima uređaje u svim prostorijamavrhunsku stolariju s troslojnim staklomvideo parlafonpripremu za punionicu električnih vozila na parkirnom mjestupametnu parking rampu s očitavanjem registarskih oznakaLokacija zgrade dodatno povećava vrijednost nekretnine - mirna, a istovremeno centralna pozicija, na nekoliko minuta hoda od mora, plaže i svih sadržaja, čini ovu novogradnju jednom od rijetkih i najpoželjnijih u ovom dijelu Vodica.Za sve dodatne informacije i razgledavanje, slobodno nas kontaktirajte.... Više na eurovilla.hr, ID: 602562
Si deseas más información puedes hablar con Domagoj Matić.
Características
Tipología
Piso
Contrato
Venta
Planta
1
Superficie
119 m²
Habitaciones
3
Dormitorios
3
Balcón
Terraza
Detalle superficie

Vivienda

Planta
1
Superficie
120,0 m²
Coeficiente
100%
Tipo de superficie
Principal
Superficie construida
120,0 m²
Información del precio
Precio
€ 503.790
Precio del m²
4.234 €/m²
Eficiencia energética
  • Estado

    Nuevo / En construcción
  • Certificación energética

    Exento
Plano
Descubre otros ángulos del inmueble
+16
Opciones adicionales

Contactar con el anunciante

O