Piso de dos habitaciones Omiš, Omiš

€ 315.750
2
63 m²
3

Nota

Anuncio actualizado el 24/03/2026
Descripción

referencia: EUROVILLA-699109

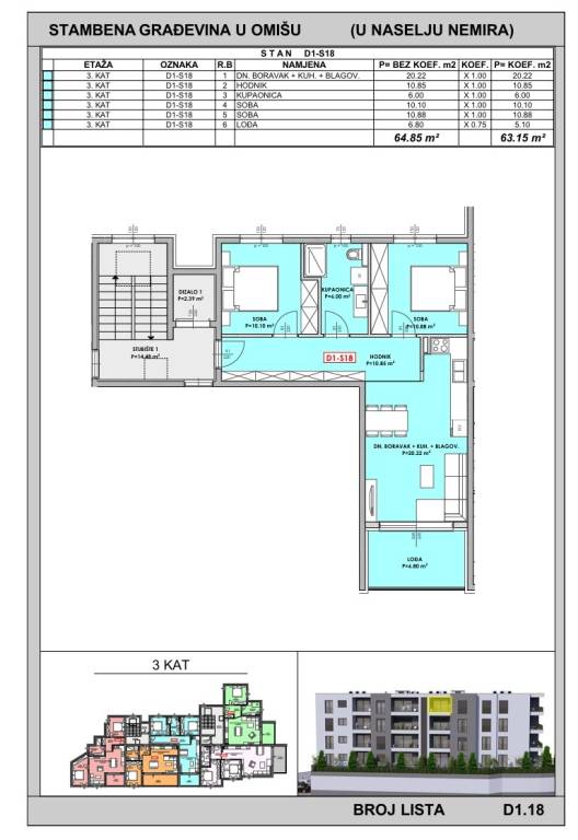
Omiška rivijera, dvosoban stan južne orijentacije, u modernoj novogradnji udaljenoj samo 150 metara od mora.STAN S18 nalazi se na trećem katu zgrade i ima 58.05 m2 zatvorene stambene površine. Sastoji se od dvije spavaće sobe, hodnika, kupaonice, kuhinje s blagovaonicom i dnevnog boravka. Iz dnevnog boravka se izlazi na lođu površine 6.80 m2.Uz stan je moguća kupnja garažnog ili vanjskog parkirnog mjesta, kao i ostave.Oprema: podno grijanje u dnevnom boravku i kupaonici, klima uređaj u sobi i dnevnom boravku, električne rolete, PVC stolarija s troslojnim staklom, klizne aluminijske stijene, staklena ograda, kvalitetna keramika i sanitarna oprema.Zgrada se nalazi u mirnom naselju, svega 145 metara od mora i prekrasnih plaža. Blizina grada Omiša, udaljenog samo 1,5 kilometara, omogućuje jednostavan pristup svim potrebnim sadržajima. Split je udaljen 25 kilometara, a Zračna luka 45 kilometara.Kupac ne plaća porez na promet nekretnina za stanove iz ovog projekta.Planirani završetak gradnje je krajem 2027. godine.Za više informacija, stojimo vam na raspolaganju.... Više na eurovilla.hr, ID: 699109
Si deseas más información puedes hablar con Lucija Medak.
Características
Tipología
Piso
Contrato
Venta
Planta
3
Superficie
63 m²
Habitaciones
2
Dormitorios
2
Detalle superficie

Vivienda

Planta
3
Superficie
63,2 m²
Coeficiente
100%
Tipo de superficie
Principal
Superficie construida
63,2 m²
Información del precio
Precio
€ 315.750
Precio del m²
5.012 €/m²
Eficiencia energética
  • Estado

    Nuevo / En construcción
  • Certificación energética

    Exento
Plano
Descubre otros ángulos del inmueble
+9
Opciones adicionales

Contactar con el anunciante

O