Piso de dos habitaciones Primošten, Primošten

€ 677.580
2
120 m²
2
Terraza

Nota

Anuncio actualizado el 03/03/2026
Descripción

referencia: EUROVILLA-719074

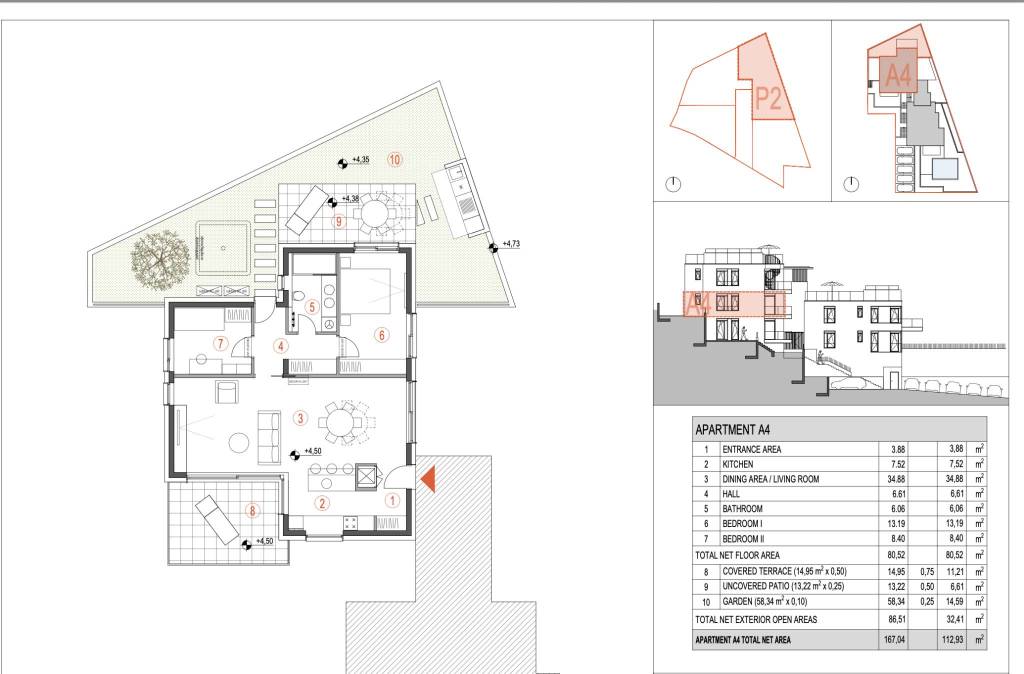
Primošten, prekrasan trosoban apartman neto korisne površine 120,87 m2 na atraktivnoj lokaciji, idealan za opuštajući odmor s pogledom na more! Smješten u mirnom okruženju, a istovremeno blizu svih važnih sadržaja.Apartman ( P2 A4 ) se sastoji od ulaznog hodnika, potpuno opremljene kuhinje, prostranog dnevnog boravka, blagovaonice, 2 spavaće sobe, kupaonice, ljetne kuhinje, natkrivene i nenatkrivene terase, ograđenog vrta, privatnog bazena, sunčališta s ležaljkama te mu pripada ostava i parkirno mjesto.Visoko kvalitetna oprema: ETICS - fasadni sustav, protuprovalna ulazna vrata, parket I klase, vrhunska keramika A klase i sanitarije visokog standarda, pipe i tuševi - GROHE, dizalica topline, podno grijanje, vanjska alu stolarija sa žaluzinama te video portafon.Savršen je za obitelj, parove ili grupu prijatelja koji žele uživati u opuštajućem odmoru uz more, u potpunoj privatnosti i udobnosti. Svi prostori su moderno uređeni, a vanjski sadržaji garantiraju nezaboravne trenutke na otvorenom.Za dodatne informacije slobodno nas kontaktirajte!... Više na eurovilla.hr, ID: 719074
Si deseas más información puedes hablar con Domagoj Matić.
Características
Tipología
Piso
Contrato
Venta
Planta
2
Superficie
120 m²
Habitaciones
2
Dormitorios
2
Terraza
Detalle superficie

Vivienda

Planta
2
Superficie
120,9 m²
Coeficiente
100%
Tipo de superficie
Principal
Superficie construida
120,9 m²
Información del precio
Precio
€ 677.580
Precio del m²
5.647 €/m²
Eficiencia energética
  • Estado

    Nuevo / En construcción
  • Certificación energética

    Exento
Plano
Descubre otros ángulos del inmueble
+3
Opciones adicionales

Contactar con el anunciante

O