Piso de cuatro habitaciones Male vruje, Vodice

€ 552.804
4
131 m²
1
Balcón
Terraza

Nota

Anuncio actualizado el 03/03/2026
Descripción

referencia: EUROVILLA-779075

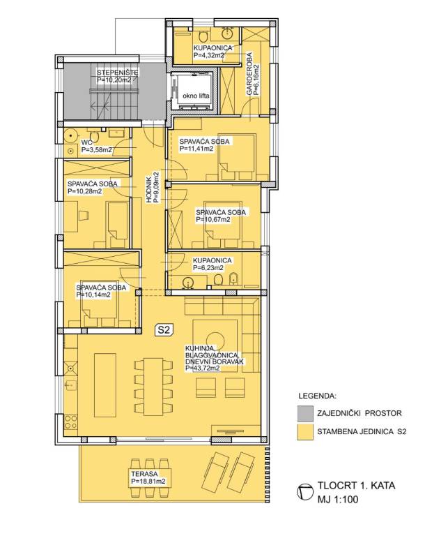
Na iznimnoj lokaciji u centru Vodica, svega 200 metara od mora, nalazi se ovaj prostrani stan na prvom katu novogradnje visoke kvalitete, neto korisne površine 131,62 m². Stanu pripadaju dva privatna parkirna mjesta u dvorištu zgrade. Ukupna zatvorena površina stana iznosi 115,60 m².Stan je funkcionalno i moderno osmišljen, a sastoji se od prostranog dnevnog boravka s kuhinjom i blagovaonicom, četiri spavaće sobe (od kojih jedna ima vlastitu kupaonicu i walk in garderobu), dodatne kupaonice te zasebnog toaleta. Iz dnevnog boravka izlazi se na veliku terasu površine 18,81 m², koja čini savršen prostor za boravak na otvorenom.Zgrada je građena prema najvišim standardima gradnje i opreme. Izdvajamo:dizalopodno grijanje na toplinsku pumpuMitsubishi klima uređaje u svim prostorijamavrhunsku stolariju s troslojnim staklomvideo parlafonpripremu za punionicu električnih vozila na parkirnom mjestupametnu parking rampu s očitavanjem registarskih oznakaLokacija zgrade dodatno povećava vrijednost nekretnine - mirna, a istovremeno centralna pozicija, na nekoliko minuta hoda od mora, plaže i svih sadržaja, čini ovu novogradnju jednom od rijetkih i najpoželjnijih u ovom dijelu Vodica.Za sve dodatne informacije i razgledavanje, slobodno nas kontaktirajte.... Više na eurovilla.hr, ID: 779075
Si deseas más información puedes hablar con Domagoj Matić.
Características
Tipología
Piso
Contrato
Venta
Planta
1
Superficie
131 m²
Habitaciones
4
Dormitorios
4
Balcón
Terraza
Detalle superficie

Vivienda

Planta
1
Superficie
131,6 m²
Coeficiente
100%
Tipo de superficie
Principal
Superficie construida
131,6 m²
Información del precio
Precio
€ 552.804
Precio del m²
4.220 €/m²
Eficiencia energética
  • Estado

    Nuevo / En construcción
  • Certificación energética

    Exento
Plano
Descubre otros ángulos del inmueble
+20
Opciones adicionales

Contactar con el anunciante

O