Piso de tres habitaciones Male vruje, Vodice

€ 491.796
3
136 m²
B
Balcón
Terraza

Nota

Anuncio actualizado el 03/03/2026
Descripción

referencia: EUROVILLA-823990

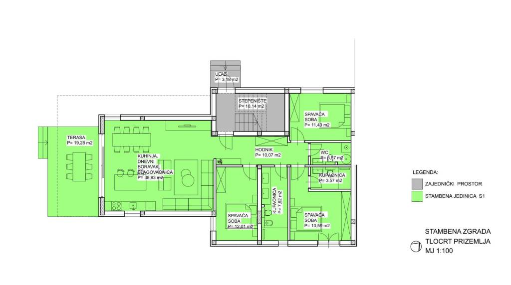
Na iznimnoj lokaciji u centru Vodica, svega 200 metara od mora, nalazi se ovaj prostrani apartman u prizemlju novogradnje visoke kvalitete, neto korisne površine 139,61 m². Nekretnini pripadaju dva privatna parkirna mjesta te prostrano dvorište površine 123,90 m², što predstavlja rijetkost u ovom dijelu mjesta. Ukupna zatvorena površina stana iznosi 100,79 m².Stan je funkcionalno i moderno osmišljen, a sastoji se od prostranog dnevnog boravka s kuhinjom i blagovaonicom, tri spavaće sobe (od kojih jedna ima vlastitu kupaonicu), dodatne kupaonice te zasebnog toaleta. Iz dnevnog boravka izlazi se na veliku terasu površine 19,28 m², koja je povezana s ostatkom dvorišta i čini savršen prostor za boravak na otvorenom.Veliko privatno dvorište pruža brojne mogućnosti uređenja - od zone za roštilj i druženje, do prostora za dječje igralište ili dodatni vrt, čime se dodatno naglašava ekskluzivnost ove nekretnine.Zgrada je građena prema najvišim standardima gradnje i opreme. Izdvajamo:podno grijanje na toplinsku pumpuMitsubishi klima uređaje u svim prostorijamavrhunsku stolariju s troslojnim staklomvideo parlafonpripremu za punionicu električnih vozila na parkirnom mjestupametnu parking rampu s očitavanjem registarskih oznakaLokacija zgrade dodatno povećava vrijednost nekretnine - mirna, a istovremeno centralna pozicija, na nekoliko minuta hoda od mora, plaže i svih sadržaja, čini ovu novogradnju jednom od rijetkih i najpoželjnijih u ovom dijelu Vodica.Za sve dodatne informacije i razgledavanje, slobodno nas kontaktirajte.... Više na eurovilla.hr, ID: 823990
Si deseas más información puedes hablar con Domagoj Matić.
Características
Tipología
Piso
Contrato
Venta
Planta
Planta baja
Superficie
136 m²
Habitaciones
3
Dormitorios
3
Balcón
Terraza
Detalle superficie

Vivienda

Planta
Planta baja
Superficie
136,6 m²
Coeficiente
100%
Tipo de superficie
Principal
Superficie construida
136,6 m²
Información del precio
Precio
€ 491.796
Precio del m²
3.616 €/m²
Eficiencia energética
  • Estado

    Nuevo / En construcción
  • Certificación energética

    Exento
Plano
Descubre otros ángulos del inmueble
+19
Opciones adicionales

Contactar con el anunciante

O