Piso de una habitación Ulica Ivana Meštrovića, Primošten

€ 271.371
1
53 m²
1
Terraza

Nota

Anuncio actualizado el 03/03/2026
Descripción

referencia: EUROVILLA-951478

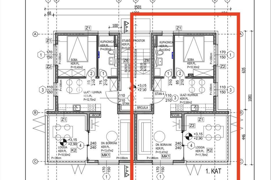
Primošten, moderan stan na prvom katu s pogledom na more, ukupne neto korisne površine 53,21 m². Stanu pripada jedno parkirno mjesto, a zatvoreni stambeni prostor iznosi 41,34 m².Stan se sastoji od dnevnog boravka, kuhinje s blagovaonicom, spavaće sobe, te kupaonice. Iz dnevnog boravka izlazi se na terasu od 11,78 m² s pogledom na more. Stan se prodaje nenamješten, spreman za personalizaciju prema ukusu budućeg vlasnika.Ovaj stan predstavlja odličnu priliku za one koji žele komfornu, modernu i dugoročno sigurnu investiciju, bilo za život, odmor ili turistički najam.Za sve dodatne informacije i dogovor razgledavanja, stojimo na raspolaganju.... Više na eurovilla.hr, ID: 951478
Si deseas más información puedes hablar con Domagoj Matić.
Características
Tipología
Piso
Contrato
Venta
Planta
1
Superficie
53 m²
Habitaciones
1
Dormitorios
1
Terraza
Detalle superficie

Vivienda

Planta
1
Superficie
53,2 m²
Coeficiente
100%
Tipo de superficie
Principal
Superficie construida
53,2 m²
Información del precio
Precio
€ 271.371
Precio del m²
5.120 €/m²
Eficiencia energética
  • Estado

    Nuevo / En construcción
  • Certificación energética

    Exento
Plano
Descubre otros ángulos del inmueble
+4
Opciones adicionales

Contactar con el anunciante

O