Piso de una habitación Ilica, Kustošija Centar, Zagreb

Precio a consultar
1
55 m²
4

Nota

Anuncio actualizado el 03/03/2026
Descripción

referencia: EUROVILLA-972694

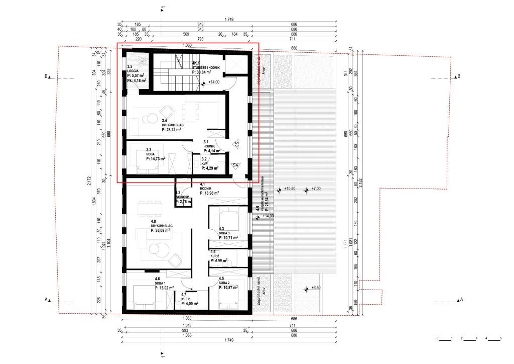
Črnomerec, NOVOGRADNJA, projekt poslovno-stambene zgrada koja će biti građena prema najvišim standardima na šest etaža s ukupno 7 stambenih jedinica. Useljenje ljeto 2027. godine.STAN S3 - dvosoban stan na četvrtom katu zatvorene površine 51,38 m2, loggia 5,57 m2. Ukupno obračunski netto korisna površina 55,56 m2.Sastoji se od ulaznog hodnika, dnevnog boravka s blagovaonicom i kuhinjom otvorenog tlocrta s izlazom na loggiu, spavaće sobe i kupaonice.OBAVEZNA KUPNJA GARAŽNOG PARKIRNOG MJESTA.Vrhunska oprema: podno grijanje, dizalica topline, klimatizirane sve prostorije, ALU stolarija, protuprovalna ulazna vrata, parket I klase, vrhunska keramika i sanitarna oprema…Nalazi se na izvrsnoj mikrolokaciji u neposrednoj blizini centra grada, javnog prijevoza te svih sadržaja potrebnih za kvalitetan život.Za sve ostale informacije stojimo na raspolaganju.... Više na eurovilla.hr, ID: 972694
Si deseas más información puedes hablar con Renato Tripalo.
Características
Tipología
Piso
Contrato
Venta
Planta
4
Superficie
55 m²
Habitaciones
1
Dormitorios
1
Detalle superficie

Vivienda

Planta
4
Superficie
55,6 m²
Coeficiente
100%
Tipo de superficie
Principal
Superficie construida
55,6 m²
Información del precio
Precio
Precio a consultar
Plano
Descubre otros ángulos del inmueble
+3
Opciones adicionales

Contactar con el anunciante