Piso de tres habitaciones Rtić, Rogoznica

€ 450.000
3
117 m²
2
Balcón

Nota

Anuncio actualizado el 03/03/2026
Descripción

referencia: EUROVILLA-997784

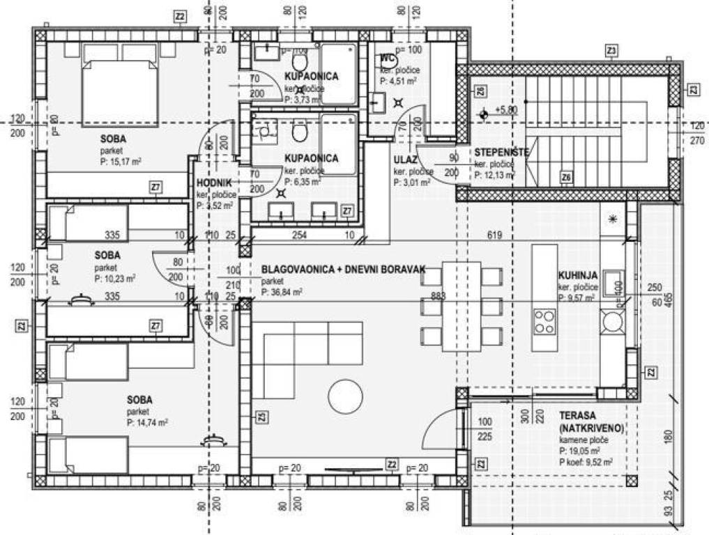
Rogoznica, Zečevo Rogozničko, odličan trosoban stan zatvorene površine 107,67 m² na drugom katu moderne zgrade izgrađene 2024. godine. Pripadaju mu dva parkirna mjesta u dvorištu. Ukupno obračunski neto korisna površina 117,19 m².Stan se sastoji od prostranog dnevnog boravka sa kuhinjom i blagovaonicom, tri spavaće sobe od kojih jedna ima privatnu kupaonicu, jedne zasebne kupaonice, WC-a te balkona s pogledom na more. U stanu je velika staklena stijena koja stanu daje puno prirodne svijetlosti. Stanu pripada ostava u podrumu površine 10 m².Izvrsna mikrolokacija, mirna ulica u blizini prekrasnih plaža plaža. Udaljenost do plaže je 100 metara, a do centra Rogoznice 2 km. Planirani završetak radova je do svibnja 2025.Za sve ostale informacije stojimo na raspolaganju.... Više na eurovilla.hr, ID: 997784
Si deseas más información puedes hablar con Domagoj Matić.
Características
Tipología
Piso
Contrato
Venta
Planta
2
Superficie
117 m²
Habitaciones
3
Dormitorios
3
Balcón
Detalle superficie

Vivienda

Planta
2
Superficie
117,2 m²
Coeficiente
100%
Tipo de superficie
Principal
Superficie construida
117,2 m²
Información del precio
Precio
€ 450.000
Precio del m²
3.846 €/m²
Plano
Descubre otros ángulos del inmueble
+10
Opciones adicionales

Contactar con el anunciante

O