Piso de dos habitaciones segunda planta, Staro Brestje, Zagreb

€ 244.704
2
76 m²
1
2
No

Nota

Anuncio actualizado el 03/03/2026
Descripción

referencia: iro-699140

Zagreb - Sesvete (Gajišće), prodaje se stan od 76,47 m2 na drugom katu stambene zgrade u izgradnji, planirani rok useljenja je kraj 2026. godine.

Sastoji se od: dvije spavaće sobe, kuhinje s blagovaonom i dnevnim boravkom, kupaone, ostave, i lođe.

Zgrada ima lift.

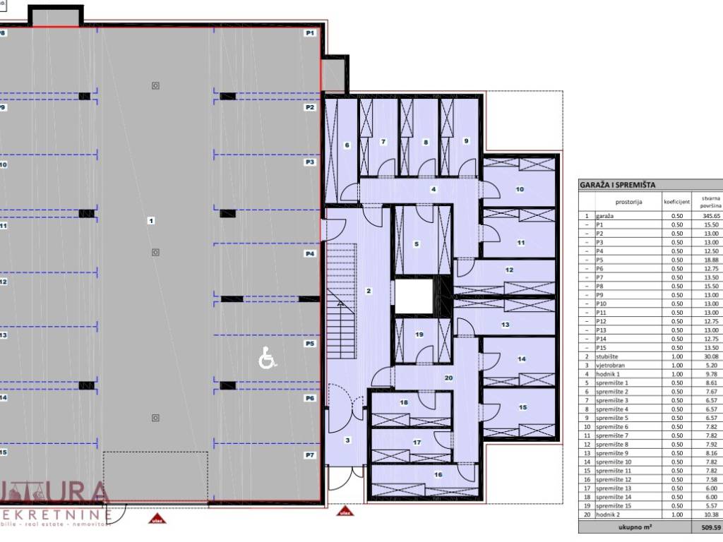
U cijenu i kvadraturu nisu uračunati garažno mjesto i spremište u podrumu zgrade; postoji mogućnost odabira istih.

Nalazi se na izvrsnoj lokaciji 700m od centra grada Sesveta, u mirnom okruženju, tik uz šumu.
Planski je osmišljeno stoga je sve potrebno nadohvat ruke, što se naročito odnosi na osnovnu i srednju školu, trgovačke centre (Kaufland, Konzum…), Hrvatsku poštu, Dom zdravlja, banke, ljekarne…

Dokumentacija uredna.

Stan je oznake S10.
Si deseas más información puedes hablar con Luka Dzeletovic.
Características
Tipología
Piso | Tipo de inmueble medio
Contrato
Venta
Planta
2 planta
Plantas del edificio
4
Ascensor
No
Superficie
76 m²
Habitaciones
2
Dormitorios
2
Baños
1
Balcón
No
Terraza
No
Información del precio
Precio
€ 244.704
Precio del m²
3.220 €/m²
Eficiencia energética

Consumo de energia

A

Descubre otros ángulos del inmueble
+5
Opciones adicionales

Contactar con el anunciante

O