1/12


Piso de cuatro habitaciones nuevo, tercera planta, Mašićeva - Dobri dol, Zagreb
€ 758.537
Anuncio actualizado el 06/04/2026
Descripción
referencia: ZG886607
ID CODE: ZG886607
Drago Palić
Asistent u posredovanju
Mob: 091/407-0777
Tel: 01/647-3011
E-mail: drago.palic@dogma-nekretnine.com
www.dogma-zagreb.com
Características
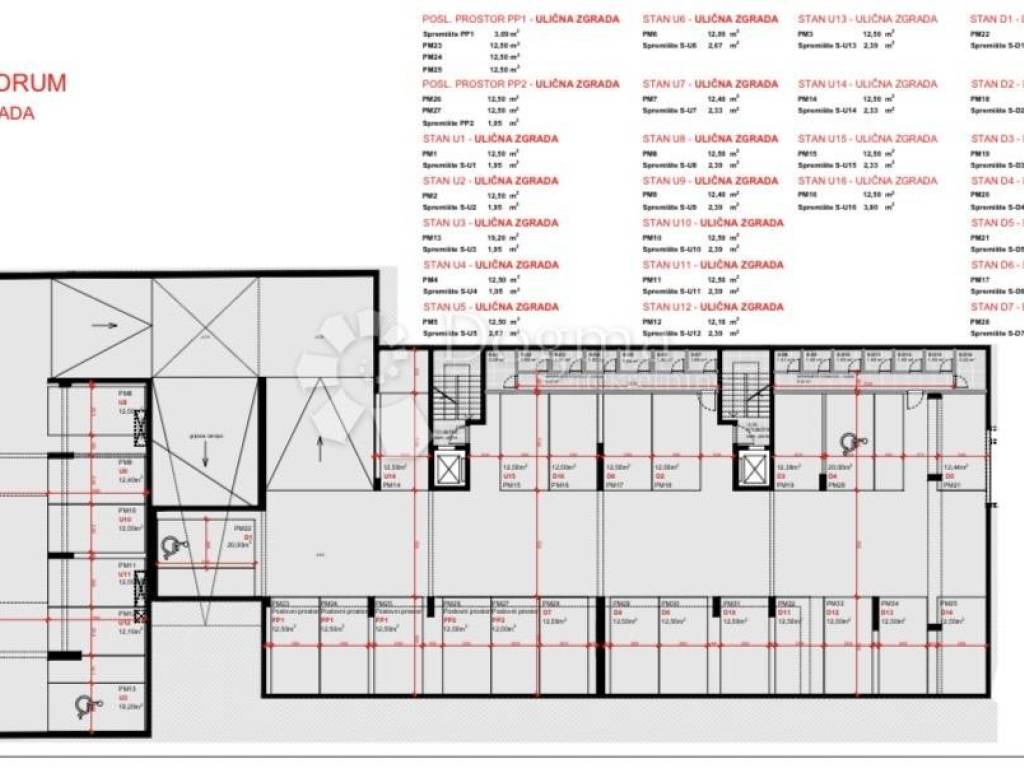
- Tipología
- Piso
- Contrato
- Venta
- Planta
- 3 planta
- Ascensor
- Sí
- Superficie
- 102 m²
- Habitaciones
- 4
- Dormitorios
- 4
- Baños
- 2
- Balcón
- No
- Terraza
- No
- Garaje, plazas de aparcamiento
- 1 en garaje privado
- Aire acondicionado
- Individual, frío/calor
Información del precio
- Precio
- € 758.537
- Precio del m²
- 7.437 €/m²
Eficiencia energética
Estado
Nuevo / En construcciónAire acondicionado
Individual, frío/calorCertificación energética
Exento
Descubre otros ángulos del inmueble
Opciones adicionales