Piso de tres habitaciones nuevo, Vodice

€ 199.000
3
74 m²
1
No
Terraza

Nota

Anuncio actualizado el 11/03/2026
Descripción

This description has been translated automatically and may not be accurate

referencia: S2339

Vodice - Apartamento S2 con jardín en una ubicación tranquila

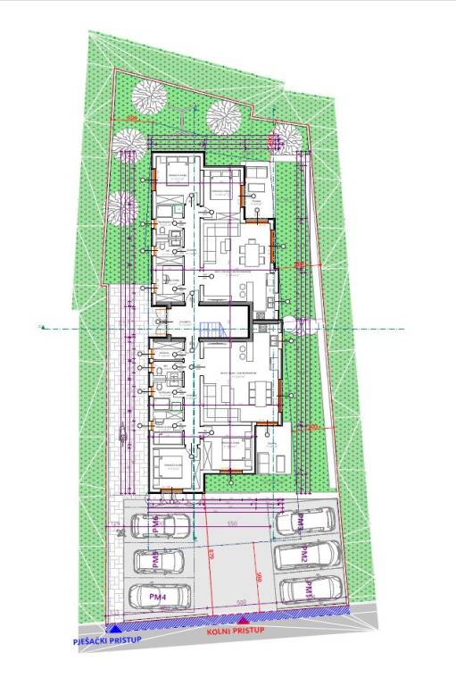
Vodice - se venden apartamentos en un edificio residencial pequeño en una ubicación tranquila en una construcción nueva. El edificio de aspecto moderno tiene dos plantas: planta baja + piso. En cada planta habrá dos apartamentos. El edificio se está construyendo actualmente con materiales de calidad y estará equipado según el último estándar de construcción: fachada de poliestireno, carpintería de PVC color antracita, persianas con elevadores eléctricos, azulejos cerámicos, sanitarios modernos de baño, calefacción por suelo radiante, aire acondicionado en la sala de estar y dormitorios....
El plazo previsto para la finalización de la construcción es a principios de 2027.
Cada apartamento tiene un lugar de estacionamiento, y los apartamentos en la planta baja también tienen una parte correspondiente de jardín.
El edificio está ubicado en una zona tranquila, a unos 1500 m de la playa y a unos 1100 m del centro de la ciudad.

Apartamento S2 con una superficie útil neta total de 74,63 m2, ubicado en la planta baja del edificio, consta de entrada, pasillo, tres dormitorios, baño, aseo, cocina con comedor y sala de estar con salida a una terraza cubierta de 8,60 m2. El apartamento cuenta con un jardín de 121 m2 y un lugar de estacionamiento. PRECIO: 199.000 €

DISPONIBLE EN EL EDIFICIO:

PLANTA BAJA:

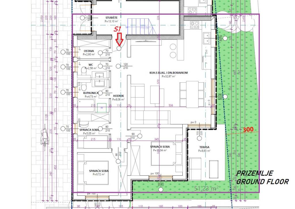
Apartamento S1 con una superficie útil neta de 81,29 m2, ubicado en la planta baja del edificio, consta de: entrada, pasillo, tres dormitorios, baño, aseo, trastero, cocina con comedor y sala de estar con salida a una terraza cubierta. El apartamento incluye un jardín de 51,23 m2 y un lugar de estacionamiento. PRECIO: 225.000 €

PRIMER PISO

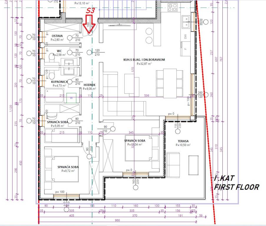
Apartamento S3 con una superficie útil neta total de 84,89 m2, ubicado en el piso del edificio, consta de entrada, pasillo, tres dormitorios, baño, aseo, trastero, cocina con comedor y sala de estar con salida a una terraza cubierta de 16,03 m2. El apartamento cuenta con un lugar de estacionamiento. PRECIO: 220.000 €

Apartamento S4 con una superficie útil neta total de 74,05 m2, ubicado en el piso del edificio, consta de entrada, pasillo, tres dormitorios, aseo, baño, cocina con comedor y sala de estar con salida a una terraza cubierta de 7,44 m2. El apartamento cuenta con un lugar de estacionamiento. PRECIO: 195.000 €
Características
Tipología
Piso | Tipo de inmueble medio
Contrato
Venta
Plantas del edificio
2
Ascensor
No
Superficie
74 m²
Habitaciones
3
Dormitorios
3
Baños
1
Balcón
No
Terraza
Calefacción
Individual, por radiadores, alimentación eléctrica
Aire acondicionado
Individual
Información del precio
Precio
€ 199.000
Precio del m²
2.689 €/m²
Eficiencia energética

Consumo de energia

A

Plano
Descubre otros ángulos del inmueble
+10
Opciones adicionales

Contactar con el anunciante

O