map icon

Piso de cuatro habitaciones nuevo, Zagreb

Zagreb
€ 548.000
4
130 m²
2

Nota

Anuncio actualizado el 19/03/2026
Descripción

referencia: 230

Zagreb, Kustošija, moderan četverosoban penthouse 130,5 m2 u kvalitetnoj novogradnji s 5 stambenih jedinica, na mirnoj i zelenoj lokaciji.
 
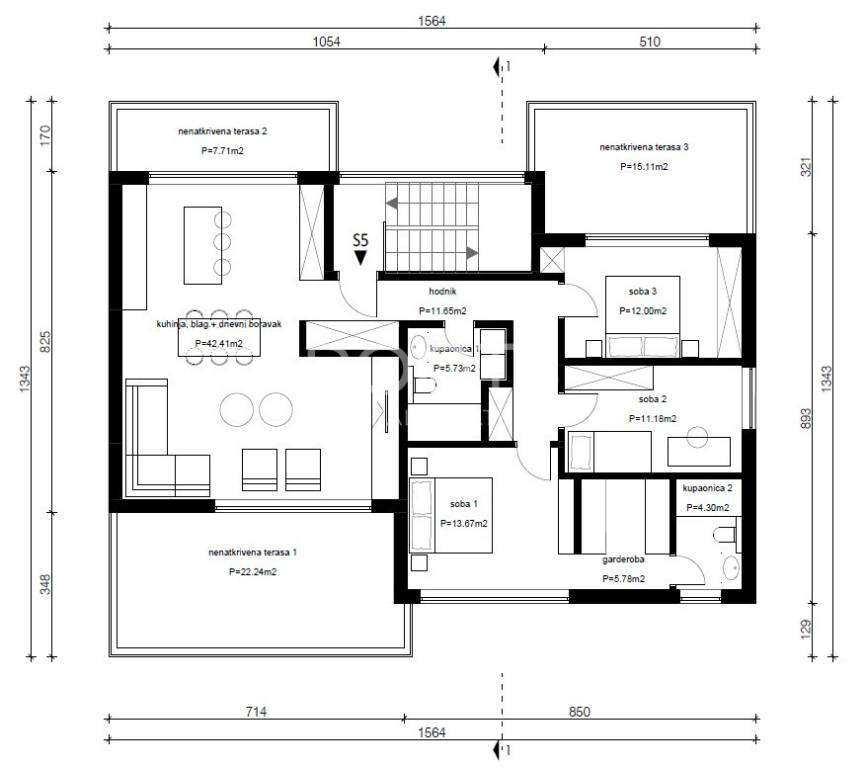
Stan S5 - četverosoban penthouse na drugom katu, zatvorene površine 106,72 m2 s tri nenatkrivene terase ukupne površine 45,04 m2 i dva garažna parkirna mjesta.
Ukupna obračunska kvadratura 130,48 m2.
Kvalitetno iskorišten tlocrt sastoji se od ulaznog hodnika, prostranog open-space koncepta dnevnog boravka s izlaskom na istočnu terasu, blagovaone i kuhinje s izlaskom na zapadnu terasu, kupaonice, velike master spavaće sobe s vlastitom garderobom i kupaonicom te dodatne dvije spavaće sobe.
Orijentacija stana je istok - zapad s velikim staklenim stijenama i pregršt dnevnog svjetla tijekom cijelog dana.
 
Zgrada će biti izgrađena prema visokim standardima struke, uključujući:
- podno grijanje putem dizalice topline- aluminijska stolarija- elektro rolete s komarnicima- troslojni hrastov parket po cijelom stanu- keramika i sanitarije A klase- protuprovalna/protupožarna vrata- unutarnja stolarija sa skrivenim pantama i magnetnim bravama- velike klizne stijene u ravnini poda
 
Atraktivna i mirna lokacija na rubu zelenog pojasa, s prekrasnim pogledom na prirodu, pruža idealan spoj privatnosti i prirodnog okruženja te je savršena za miran i kvalitetan obiteljski život.
Lokacija je ujedno odlično povezana sa svim važnim sadržajima, u blizini su škola, vrtić te javni prijevoz, što omogućuje ugodan i praktičan svakodnevni život.
 
Stanovi u sustavu PDV-a, kupac ne plaća PPN (Porez na Promet Nekretnina).
Planirani završetak - prvi kvartal 2027. godine.
Ostale informacije na upit.
Si deseas más información puedes hablar con Filip Ukalović.
Características
Tipología
Piso
Contrato
Venta
Plantas del edificio
2
Superficie
130 m²
Habitaciones
4
Dormitorios
3
Baños
2
Calefacción
Individual, por aire, por bomba de calor
Vistas
Panorámica
Otras características
  • Carpintería exterior de vidrio/metal
  • Hidromasaje
  • Puerta blindada
  • Videoportero
Información del precio
Precio
€ 548.000
Precio del m²
4.215 €/m²
Desglose de los costes
Gastos de comunidad
Ningún gasto de comunidad
Eficiencia energética
  • Año de construcción

    2026
  • Estado

    Nuevo / En construcción
  • Calefacción

    Individual, por aire, por bomba de calor
  • Certificación energética

    Inclasificable
Plano
Zagreb, Crnomerec
Descubre otros ángulos del inmueble
+3
Opciones adicionales

Contactar con el anunciante

O