Piso de tres habitaciones cuarta planta, Rovinj

€ 390.370
3
78 m²
1
4
Terraza
Amueblado

Nota

Anuncio actualizado el 24/03/2026
Descripción

This description has been translated automatically and may not be accurate

referencia: 46026

ISTRIA, ROVINJ - Aesthetically impeccable apartment in an attractive location

For sale is an exceptionally high-quality and modernly furnished apartment located in one of the most desirable cities on the Adriatic - Rovinj. This property represents an excellent opportunity for anyone looking for a comfortable home or a secure investment in a city that has been attracting buyers from all over the world for years.

The apartment is located in a residential building on the fourth floor of a total of five floors, located only 200 meters from the center of Rovinj. Due to its position, it provides quick access to all amenities necessary for everyday life, as well as enjoying the unique Mediterranean atmosphere of the city.

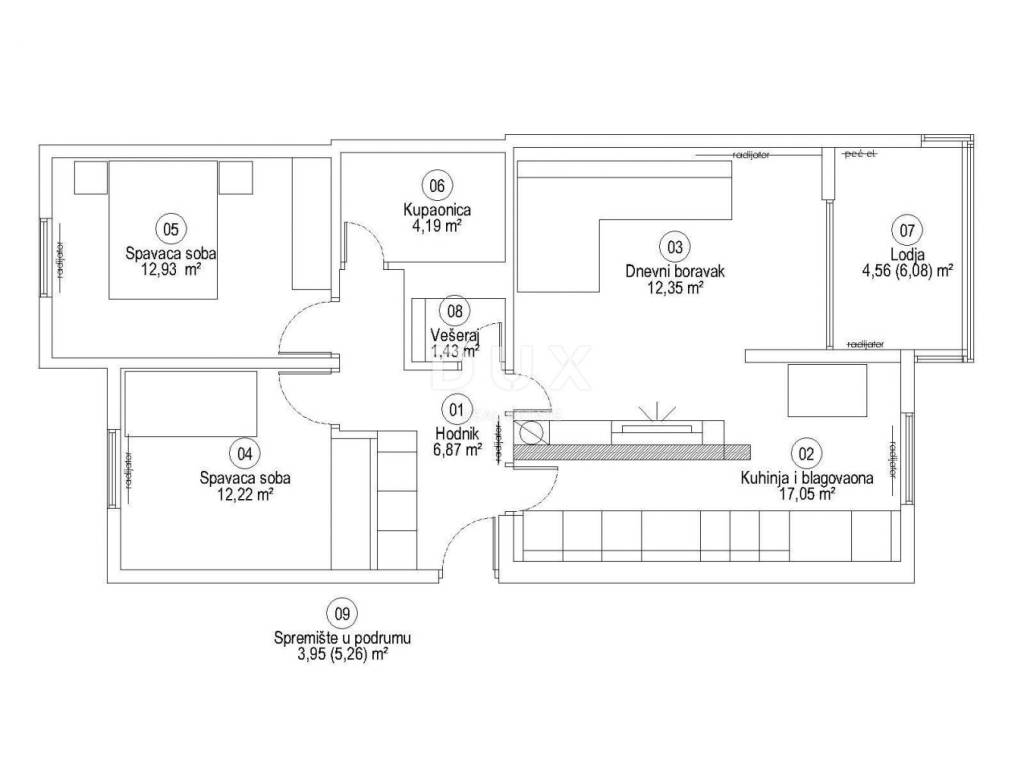
APARTMENT LAYOUT

The apartment is very functionally organized and divided into a ''private and living area''.

The entrance hall leads to:
-a spacious living room connected to the kitchen and dining room
-exit to a large loggia that provides a pleasant space for relaxation
-laundry room
-a spacious bathroom

In the private part there are:
-two large bedrooms
-additional space for storage and organization

The apartment is bright, airy and very comfortable for everyday life.

FEATURES
The building was built in 1978, while the apartment was thoroughly renovated in 2020 using top-quality materials and equipment.

The apartment is equipped with renowned brands and premium elements:
*Dan Küchen top quality kitchen
*Hansgrohe bathroom fittings
*''Roberto Cavalli'' designer ceramics
*Bosch, Samsung and Electrolux household appliances
*dimmable indirect lighting and designer ceiling lights
*central electric heating (Vaillant eloBLOCK 18 kW) with radiators in all rooms
*Toshiba air conditioning in the living room
*preparation for air conditioning in the bedrooms

Everything is decorated with an emphasis on quality, functionality and a modern style of living.

ADVANTAGES OF THE LOCATION
Rovinj is one of the most beautiful and most famous towns on the Adriatic. Located on the west coast of Istria, it is known for its authentic old town core, crystal clear sea and superb gastronomy.

-200 m from the city center
-close to shops, restaurants, schools and all amenities
-arranged promenades and beaches in the immediate vicinity
-one of the most desirable cities for living and investing in Istria
-stable and growing real estate market

Rovinj, together with Poreč, makes up the tourist heart of Istria and has been among the most attractive destinations for living, vacationing and investing for years.

This property offers the perfect combination of:
* excellent location
* top-notch equipment
* functional layout
* safe long-term investment

The documentation is completely in order: 1/1 ownership, the building has a use permit.

A rare opportunity to buy a quality apartment in one of the most prestigious cities on the Adriatic.

For additional information and viewing, please contact us.

Dear clients, the agency commission is charged in accordance with the General Terms and Conditions.
www.dux-nekretnine.hr/opci-uvjeti-poslovanja

ID CODE: 46026

Aldin Begić
Agent pripravnik
Mob: +385 95 391 9185
Tel: +385 91 480 8808
E-mail: aldin@dux-istra.com
www.dux-istra.com

Deniro Osmanović
Agent pripravnik
Mob: +385 99 371 3802
Tel: +385 91 480 8808
E-mail: deniro@dux-istra.com
www.dux-istra.com

DUX Pula
Mob: +385 92 476 5008
Tel: +385 91 480 8808
E-mail: info@dux-istra.com
www.dux-istra.com
Si deseas más información puedes hablar con Aldin Begić.
Características
Tipología
Piso
Contrato
Venta
Planta
4 planta
Superficie
78 m²
Habitaciones
3
Dormitorios
2
Baños
1
Amueblado
Balcón
No
Terraza
Aire acondicionado
Individual, frío/calor
Información del precio
Precio
€ 390.370
Precio del m²
5.005 €/m²
Eficiencia energética

Consumo de energia

B

Descubre otros ángulos del inmueble
+17
Opciones adicionales

Contactar con el anunciante

O