Piso de dos habitaciones planta baja, Šibenik

€ 200.000
2
53 m²
1
1
Terraza

Nota

Anuncio actualizado el 03/04/2026
Descripción

This description has been translated automatically and may not be accurate

referencia: 46233

ŠIBENIK, BRODARICA - Beautiful one-bedroom apartment on the ground floor S2 with a garden

In one of the most desirable locations in the vicinity of Šibenik, in the quiet and well-kept Brodarica, this elegant one-bedroom apartment on the ground floor of a modern new building is located, ideal for those looking for a combination of comfort, privacy and proximity to the sea.

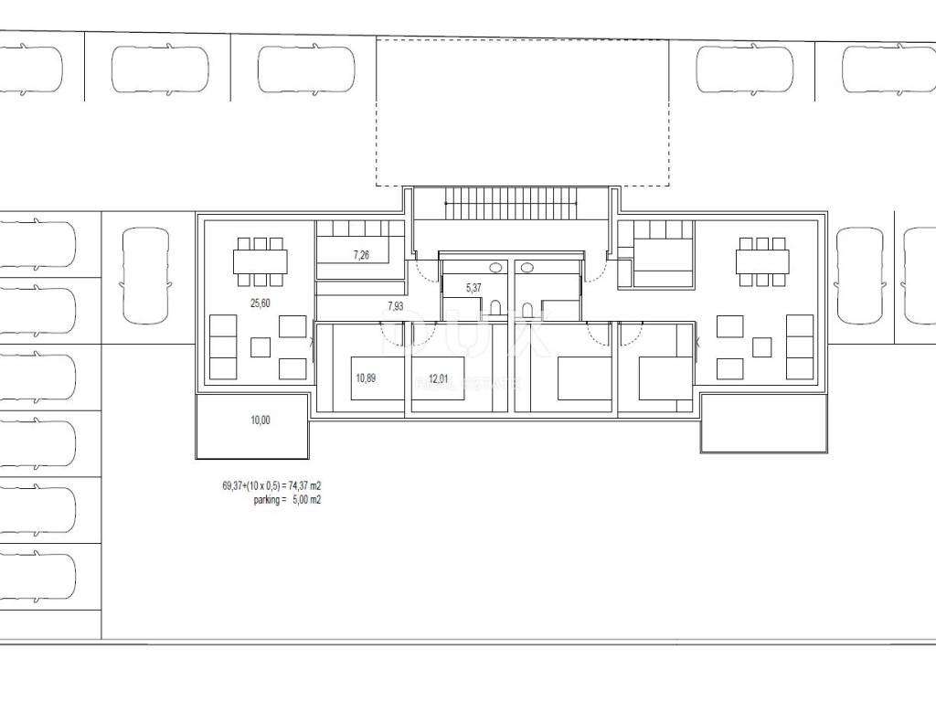
The apartment with a total living area of 53 m stands out with its functional and carefully designed layout. The entrance hall of 2.53 m leads to the bathroom of 4.83 m and to the spacious open space concept of the kitchen, dining room and living room of 23.54 m, which provides a pleasant and modern space for everyday life.
From the living room, you can access the bedroom of 10.89 m, which ensures peace and privacy. A special advantage of this property is the exit to the private courtyard from the living room and bedroom. The courtyard of actual area 64 m (calculated 6.4 m) represents a rare convenience in a new building and provides additional value and quality of living.
What sets this property apart on the market is the feeling of complete privacy and freedom the private garden offers the possibility of creating an oasis for relaxation, a Mediterranean garden or an exclusive space for socializing, which is rarely found in apartments.

Additional value is provided by the open view of the sea, the island of Krapanj - the lowest island in the world, and the panorama of the city of Šibenik, which is only a few minutes' drive away. The apartment comes with two parking spaces,.

The construction used top-quality materials and modern equipment: PVC joinery with triple glazing, air conditioning in all rooms and underfloor heating in the bathroom, with an emphasis on energy efficiency and long-term comfort of living.
Future owners are offered the flexibility of purchase the apartment can be taken over in its current condition or with an agreement on complete decoration and furnishing with furniture of your choice.

The building is financed from the investor's own funds, which allows for a secure purchase even through a housing loan, and the completion of the works is planned by the end of the year.

This property represents a rare opportunity on the market perfect for a luxurious seaside vacation, a comfortable family life or as a top investment with excellent tourist potential.

Dear clients, agency commission is charged in accordance with the General Terms and Conditions.
www.dux-nekretnine.hr/opci-uvjeti-poslovanja

ID CODE: 46233

Dux Zadar
Mob: +385 99 301 3088
Tel: +49 173 428 1847
E-mail: info@dux-nekretnine.hr
www.dux-dalmacija.com
Características
Tipología
Piso
Contrato
Venta
Planta
1
Superficie
53 m² | comercial 117 m²
Habitaciones
2
Dormitorios
1
Baños
1
Balcón
No
Terraza
Aire acondicionado
Individual, frío/calor
Detalle superficie

Vivienda

Planta
1
Superficie
53,0 m²
Coeficiente
100%
Tipo de superficie
Principal
Superficie construida
53,0 m²

Terreno

Planta
Planta baja
Superficie
64,0 m²
Coeficiente
100%
Tipo de superficie
Anexos
Superficie construida
64,0 m²
Información del precio
Precio
€ 200.000
Precio del m²
1.709 €/m²
Eficiencia energética
  • Año de construcción

    2026
  • Aire acondicionado

    Individual, frío/calor
  • Certificación energética

    Exento
Descubre otros ángulos del inmueble
+10
Opciones adicionales

Contactar con el anunciante

O