Piso de tres habitaciones nuevo, segunda planta, Marina

€ 300.000
3
2
2
No
Balcón
Terraza

Nota

Anuncio actualizado el 20/03/2026
Descripción

This description has been translated automatically and may not be accurate

referencia: RE998892

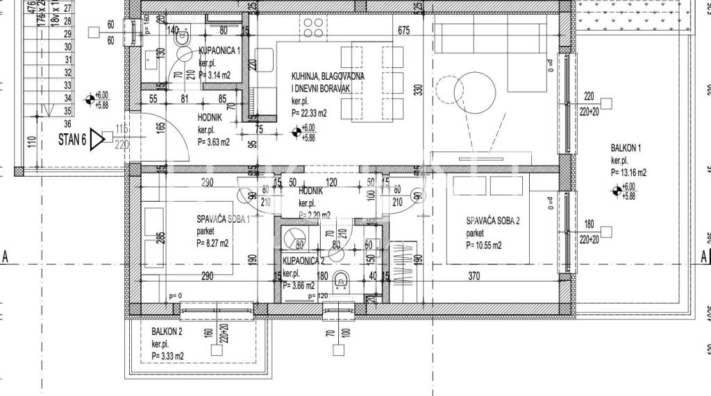
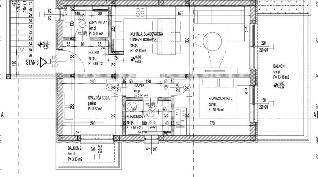
Apartment S1 is located on the ground floor of a smaller residential building in the peaceful and attractive coastal town of Poljica, in the second row from the sea. It is a new building that offers a pleasant combination of privacy, functionality, and proximity to the sea, which makes the apartment an excellent choice for family life, vacation, but also as a secure investment for tourist rental. The total net area of the apartment is 63.91 m², and it consists of an entrance area, hallway, two bedrooms, two bathrooms, and a kitchen with a dining and living room with an area of 22.33 m², which is the central part of the apartment. From the living area, there is access to two covered terraces with an area of 4.16 m² and 16.12 m², which provide a pleasant space for staying and socializing outdoors, with the added value of the ground floor position and easy access to the outdoor space. The apartment is equipped with PVC windows and doors, underfloor heating in the bathrooms, and air conditioning in all rooms, which ensures a comfortable temperature throughout the year. The flooring combines quality ceramics and parquet, which gives the space a modern and warm atmosphere. The property is located in a quiet and well-maintained part of Poljica, just a few minutes' walk from the sea and the beach. The location offers an ideal combination of privacy and practicality, with the proximity of shops, restaurants, and other amenities needed for everyday life or vacation. The location offers good transport links to nearby cities such as Trogir and Split, which can be reached in just twenty minutes by car, while access to the main roads is quick and easy. The proximity to the airport further contributes to practicality, especially for those who plan to use the property for tourist purposes or for frequent travel. The building is currently under construction, and the completion of works is planned for December 2026. The project includes only six apartments, which ensures an additional level of privacy and a peaceful environment. Each apartment has one outdoor parking space, and payment is organized in construction phases, which allows buyers greater flexibility and security during the purchase. For more information or to arrange a viewing, feel free to contact us.
Características
Tipología
Piso
Contrato
Venta
Planta
2 planta
Plantas del edificio
2
Ascensor
No
Habitaciones
3
Dormitorios
2
Baños
2
Balcón
Terraza
Garaje, plazas de aparcamiento
1 en aparcamiento/garaje público
Calefacción
Central, suelo radiante, por bomba de calor
Aire acondicionado
Individual, frío/calor
Información del precio
Precio
€ 300.000
Eficiencia energética
  • Estado

    Nuevo / En construcción
  • Calefacción

    Central, suelo radiante, por bomba de calor
  • Aire acondicionado

    Individual, frío/calor
  • Certificación energética

    Exento
Plano
Descubre otros ángulos del inmueble
+5
Opciones adicionales

Contactar con el anunciante

O